江建业 首页 设计作品 查看内容

新自然主义之混搭【胡家园】

发布者: 江建业| 查看: 701| 评论: 0

摘要: 我的理念:对于一个家来说,性价比高、环保、安全、实用、耐用,耐看、不过时,这些因素比风格和创意更重要!(我只用实景作品说话!)1、一套房子,把平面布局设计好了,不但住起来贴心,还可让您轻松多利用几个平 ...
我的理念:对于一个家来说,性价比高、环保、安全、实用、耐用,耐看、不过时,这些因素比风格和创意更重要!
(我只用实景作品说话!)
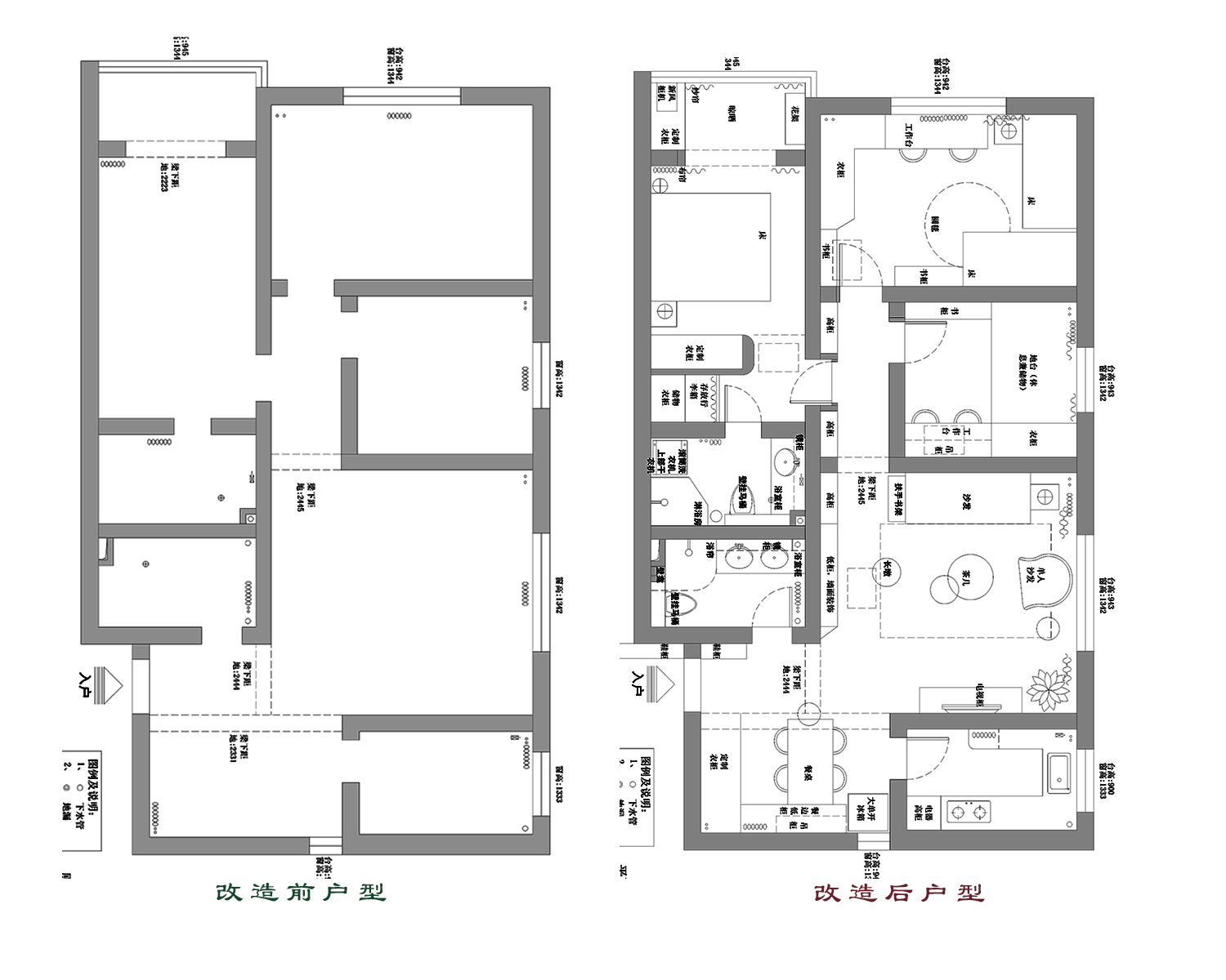
1、一套房子,把平面布局设计好了,不但住起来贴心,还可让您轻松多利用几个平米,把设计费“赚”回来。
2、好的设计理念,是可以帮业主省钱的:如没必要的吊顶、没必要的固定造型、没必要的一味用贵材料、没有必要用所谓一线“大品牌”……
3、家,是通过能用的元素(如家具、地板、砖、灯、窗帘、壁布、配饰、植物等)通过专业搭配漂亮起来的(漂亮很多时候和造价关系不是很大,造价和工艺细致程度,产品精致程度,更多的是受材料的环保级别所牵制!不是不愿意接超低预算的设计,更多的是不想装出环保级别低的装修来“害人”)。
4、任何风格,如果少了“家”的感觉,都不算是好的家居设计。
5、实用、耐用、安全、环保、舒适永远比风格及视觉效果更重要。
6、过于讲求某种风格,就如一个人过于有个性,其包容性会有局限,我倡导些许混搭元素。
7、好的设计绝不是用钱堆砌出来的,而是设计师+业主的品味铸就的。
8、一个设计师,如果没有好的心态和生活方式,是不可能设计出好作品的。
9、好作品不是靠多漂亮的图纸,靠的是对作品高度的执着,项目从始至终的优化提升,全在设计师的眼光与多年上百套实际操作一线经验的积累总结。
10、都知道理想很美好现实很残酷,我设计力求至少达到设计理想效果。配合度高的业主一般得到的现实都会超越理想设计。我的设计以出作品为己任,拿出手东西的需要体现个人的设计能力。对事不允许“妥协”。
11、我不做流行,因为流行只是昙花一现,转眼即成当年。我只做经典,包容度高的国际混搭风,基于新自然主义的自然舒适度与自然美的基础上来展开。让你的家多年后依然不落俗套,别具气质。


鲜花
上一篇:书写时光下一篇:两个人的烟火
发表评论

最新评论

手机版|江建业 ( 京ICP备12046991号-1 )

GMT+8, 2026-4-16 18:32 , Processed in 0.036593 second(s), 15 queries .

Powered by Discuz! X3.5

© 2001-2012 Comsenz Inc.

返回顶部