江建业 首页 设计作品 查看内容

梦想照进现实《高级感美式咖啡大宅》

发布者: 江建业| 查看: 577| 评论: 0

摘要: 本案位于北京市,北三环,裕民路附近小区。房子属于一二层复式结构,建筑面积在300平左右。三代同堂,儿女双全。原空间业主租给的幼儿机构。所以空间格局基本不符合实际居住需求。设计师推翻大格局,做了全新的规划 ...
本案位于北京市,北三环,裕民路附近小区。房子属于一二层复式结构,建筑面积在300平左右。三代同堂,儿女双全。原空间业主租给的幼儿机构。所以空间格局基本不符合实际居住需求。设计师推翻大格局,做了全新的规划。优化了大小主次空间,动线、储物,等全方位的协调性。空间感的定位上以新自然主义的基础上,融入品质感十足的美式韵味。让自然、舒缓、安全、低调、品质感融合到作品的每个角落。
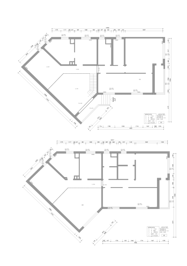
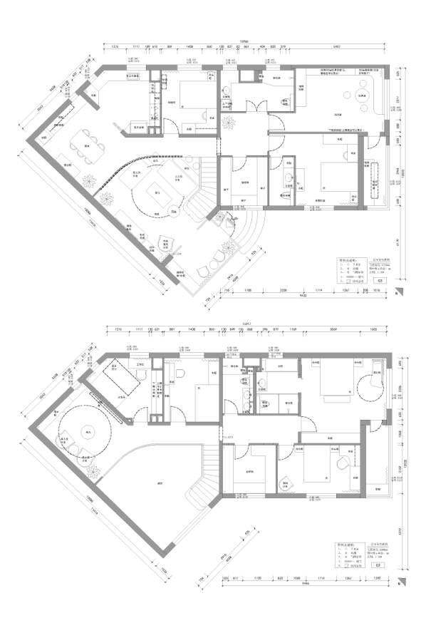
户型图

原始结构图

客厅

【原始照片】改造前的客厅空间感。

【效果图】客厅主体搭配效果图。 很多时候我做设计不太提倡所谓还原原始效果图,而是倾向尽量在实景时候能解决实际效果中的一些不太理想的搭配或用料,进行选材中的二度创作提升,市场材料的范围要远大于你的材质库。当然这么说也是你必须要超越原始设计的基础上才行的。

【实景拍摄】客厅入住后2月实景拍摄。还原居住现状,细微软装协调摆场。客厅整体还是保留了大挑空的空间大气感,楼梯的位置安排也是考虑让空间感最大化,保留了建筑本身的空间气质,书房的摆放么有贴任何墙面。而是让其平行于主体大面的墙面,这样也是保证主体空间完整的做法。圆毯和圆顶的呼应设计,营造出围和的空间感受。弱化异形所带来的突兀感。

【实景】客厅楼梯的设计,从形式上也是沙发背景的一部分装饰构成元素,作为背景他的线条感,它的色彩及质感的搭配都是给整个客厅稳重有层次有品质感氛围打下了坚实基础。

【实景】新美式大宅,护墙板还是必不可少的,色彩上没有使用传统的白,为了空间整体品质感突出。整体木门、踢脚线,护墙板、楼梯小柱,楼梯立板,背景墙,均统一做了同一个颜色,高级感十足的暖灰咖。为控制预算,楼梯跟着门护墙板颜色走了,商家调了几版色终于几乎接近,然后才确定下来。

【实景】客厅一直比较喜欢的一个横向局部构图。hh 的家具还是比较经典的。

【原始空间照片】客厅主体区域的原始空间结构

【效果图】客厅主体背景区域搭配设计效果图。在设计的效果阶段,就会把一些实际有的或者准备用的大致方向的家具、软装用进来,这样业主也能真实感受到设计阶段的空间感和主体搭配效果。

【实景拍摄】沙发背景区域的实景拍摄。在设计落地时候可以更好的优化提升空间搭配,你一定注意到在后期选材料中的两点搭配的优化,一个就是在施工中实际感受到客餐厅实际的采光没有特别理想,索性选地砖时候与业主协调,换了相较原设计较浅的长谷瓷砖。带有浓浓自然气息的哑光仿古砖,在当下市场,选择这类砖也是性价比极高的。搭配上提亮了整个公共区域,同时深浅对比,突出了主体家具软装区域。在调整完这个大项后,主体木门护墙板楼梯栏杆还保持原设计就会整体有些飘,所以设计师果断将原白色产品材质调整为质感十足的暖灰咖系。结果喜人!

【实景】沙发背景区域的正视角,木咖、暖灰,灰墨绿、灰橙、黑白纹理。共同营造出了稳重,品质,时尚,自由的自然主义空间气质。

【效果图】吧台看向客厅全景的设计效果图。

【实景照片】抢座率最高的吧台区域,大家庭的幸福的时光,很多时候都在这个开放包容的空间中度过。三代同堂,包容度是最难拿捏的一点。从空间规划设计的时候就需要考虑到,将引导一直什么家庭氛围。

餐厅

【实景】客厅过道走向餐厅,在护墙板的连贯背景下,让厅的概念模糊化,使得整个公共区域都被融合到整个厅的概念中来,每个区域之间空间共享,弱化边界感。顶部空间划分明显,所以地面材质整体通铺,让空间更加整体大气。

【实景】餐厅拉近一个视角欣赏。琴叶榕的存在,整体餐厅更生动起来,自然主义的背景装饰,让每天使用频率最高,家人之间距离最近的餐厅更加惬意舒缓。西厨的设计让餐区收纳及便利性大大提高,满满的幸福感。

【原始空间照片】餐厅看向客厅角度

【效果图】餐厅区域设计效果图。

【实景拍摄】餐厅看向客厅的角度。

厨房

【原始空间照片】原厨房空间格局

【效果图】厨房设计效果图

【实景照片】厨房格局改造后的实景照片,厨房门改从餐厅一侧进入更方便,同时也增加了餐厅的空间感。动线的流畅性互动性更强。搭配上灶台区域在选材中遇到一款欧文莱的深色复古砖作为背景,暗纹的低调华丽,让空间瞬间内敛大气。同时深色也让空间增加层次感。大理更方便。

首层长辈卧室

【原始空间照片】长辈房区域改造前空间感。

【效果图】长辈卧室设计效果图主体搭配。

【实景拍摄】长辈卧室实景照片。此空间倾向在复古美式的基础上带些低调奢华的味道。所以从台灯的细节上从窗帘的纹样上都略带金色来提亮整个空间细节,让深色部分保留一些透气感。

【实景】台灯的色调与窗帘相呼应,灯体自身带有自然味道的装饰,活跃整体氛围。

【实景】书椅的质感色调特别有质感,看着就想坐上去感受下。

首层卫生间

【原始空间照片】首层卫生间原空间区域

【效果图】首层卫生间设计搭配效果图。


【实景拍摄】卫生间实景照片。营造轻松,自然沙滩海浪的冲刷感。让身心都可以有个洗礼。

【实景】局部特写

【实景】局部特写

【效果图】长辈卫生间设计搭配效果图。

【实景拍摄】长辈卫生间实景照片。布局的时候特意给长辈卧单独设计了独立的卫生间,平时使用更私密方便。

首层游戏厅

【原始照片】首层孩子阅读游戏区原空间效果。

【效果图】孩子游戏区设计效果图。

【实景拍摄】首层孩子游戏阅读区的实景照片。这个区域在设计初期大家一致认为这个空间当作孩子们的游戏阅读区最合适不过。空间的规划上也是让主体空间开阔,让空间的成长性增强,减少特别固定的设计做法。搭配上要阳光,中性一些的搭配满足男孩女孩的共同喜好包容性。所以色彩上选取了灰度的绿、黄、黑白、浅原木等贴近自然的色彩元素,营造出阳光活跃的成长空间。灯光的处理上也是选择多种可能性,来丰富平时使用时的趣味性与层次感。为了孩子嘛,多花点心思是值得的。

楼梯区

【原始照片】刚上阁楼俯视的原空间感。

【效果图】同角度设计搭配效果图。

【实景拍摄】俯视客厅的实景照片。整个空间围和感很强。主体家具的重色点缀让空间更沉稳。三层大吊灯,自身有黑色金色的搭配,让时尚感与华贵感并存。

【原始照片】

【实景拍摄】同上图角度实景照片。殿堂级视角,把客厅氛围有提升了一个层次。仪式感十足。背景软装画龙点睛之笔。

【实景】剧照的氛围。由业主一家来演绎。

阁楼影视厅

【原始照片】阁楼影视厅的原空间区域照片。

【效果图】阁楼影视厅的设计搭配效果图。

【实景拍摄】影视厅实景照片。孩子不再和长辈们抢电视,大投影光线也更柔和,对孩子视力也是保护。美式的磨砂皮休闲沙发复古艺术气息浓厚。设计师擅用抽象的设计语言,诠释空间与空间,物与物之间的关系。

设计师拍摄前微调现场

书房

【原始照片】阁楼书房区域原空间照片。

【效果图】书房设计搭配效果图。

【实景拍摄】书房空间的实景照片。简洁安静一直是我要对书房做的定位,在书房更多与自己共处,听听自己的时间。

儿童房

【原始照片】儿童房区域原空间感。

【效果图】儿童房设计搭配效果图。

【实景拍摄】女儿房实景照片。轻松愉快、略带公主范的空间感营造。空间上设计出了学习区,满足独立学习需求。搭配上少不了的灰粉色,与水晶皇冠主灯共同撑起主体氛围。

阁楼孩子卫

【原始照片】孩子卫生间原空间区域照片。

【效果图】孩子卫生间设计搭配效果图。

【实景拍摄】孩子卫生间实景照片。有条件的咱们至少是双盆,能做壁龛的绝不要金属架。卫生间功能、打理、安全性永远在第一位。搭配上用了经典的彩色水磨石砖,搭配局部绿色的防水壁布。奶油灰的浴室柜让整体是那么亲切自然。

衣帽间

【实景】阁楼开放独立衣帽间空间。感觉还可以再大点。

阁楼主卧

【原始照片】原主卧区域原始空间感。

【效果图】主卧设计搭配效果图。

【实景拍摄】主卧空间的实景照片。利用空间优化,主卧门后一排衣柜的设计,让卧室空间不因为储物柜而杂乱,让空间更整体。空间布局上比较规矩。搭配也是标准的美式路线。给人踏实的感受。

阁楼主卫

【效果图】主卫设计搭配效果图

【实景拍摄】主卫实景照片。功能上三分卫设计更独立实用。选材现场有遇到欧文莱的褶皱橘色砖,打动了设计师及业主,设计师根据现场实际瓷砖情况现场搭配,效果确有提升,看设计前后对比。



鲜花
发表评论

最新评论

手机版|江建业 ( 京ICP备12046991号-1 )

GMT+8, 2026-2-20 18:34 , Processed in 0.041709 second(s), 16 queries .

Powered by Discuz! X3.5

© 2001-2012 Comsenz Inc.

返回顶部