江建业 首页 设计作品 查看内容

(水上华城)简约又不失格调的家总能带给你美好时光

发布者: 江建业| 查看: 695| 评论: 0

摘要: 在繁杂的社交生活之余,我们都在追寻温暖,追求舒适,希望回归生活最纯粹的样子。而家就是这样一个地方,一个简约又不失格调的家,不一定很大,却总能满足你对美好的所有期待。设计师用倒叙思维+业主高度信任配合=完 ...
在繁杂的社交生活之余,我们都在追寻温暖,追求舒适,希望回归生活最纯粹的样子。而家就是这样一个地方,一个简约又不失格调的家,不一定很大,却总能满足你对美好的所有期待。设计师用倒叙思维+业主高度信任配合=完美落地效果。
本案原户型的局部空间比较紧凑,空间之间的流通性、联动性不足,业主希望重新调整布局,打造一个相对舒适、宽敞、大气的居家格局。简约不失品质。在与业主沟通、交流后,最终确定了本案的整体风格和设计方案。整个空间以空间最大化原则设计,没有过多繁复的修饰,在自然主义元素装点下力求简,整个空间在以胡桃木色+米灰白色为主的色调基础上,加入清新自然的装饰,凸显出家居最自然的美感,让家里的每个角落都是一处独特的风景,并且营造出纯粹、舒适、自然的居家氛围,与业主的诉求完美契合。
生活品质产品方面,、集成灶、洗碗机、处理器、倍士全套水处理设备、地暖、中央空调、新风等全都覆盖。
主材类标准,三层实木复合地板(4毫米厚表板),定制柜类 爱格板。凯撒石英石。墙面芬琳漆,局部壁布背景。调色木门及调色实木踢脚线。瓷砖部分以600X1200大砖薄贴。局部手工砖点缀。家具局部实体,主体网购。灯具网购。
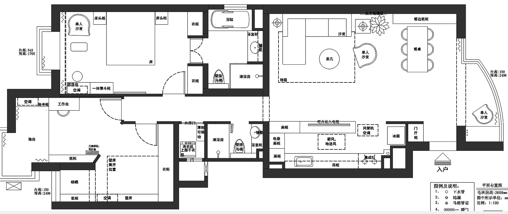
户型图

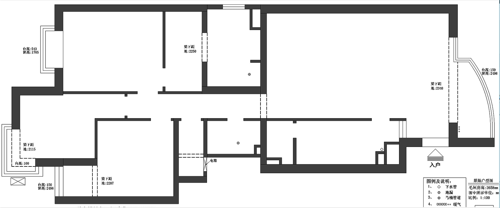
【原始户型图】

【平面布局图】空间上常住人口少,所以各空间都要以空间最大化来设计的,开放厨房是必需品,尤其是原来次卧书房很局促的格局下,将两个空间打通,用PD门来以备不时之需,书房的使用孩子从国外回来时候住一下,目前的衣帽间空间,其实是隐藏了个壁床,老人临时来的时候可以打开休息。平时大部分时间将空间感给到书房。
改造前

原现场照片

玄关

【玄关效果图】

【玄关实景拍摄】 
本户型不适合做固定玄关,损失空间感,所以将形式上的玄关设置在了入户的正对面墙,也做为餐厅的一部分装饰。得到了一个开阔的入户空间。充分优化储物空间设计,使其兼具美观与实用功能。嵌入式鞋柜的底部可存放鞋子,上面的开放空间可摆放小盆栽或钥匙包物件。转到阳台一侧的高柜是个超大的换衣柜。进门功能完全满足,还有个灵动的穿衣镜。出门前整理整理。
客厅

【效果图】

【实景拍摄】

 客厅采用整体开放式设计,与餐厅相连接,提升空间视觉的同时,增加空间互动性,彰显大气之风范。

【效果图】

【实景拍摄】

 客厅整个空间以原木色、高级灰和白色为底色,原木色的桌椅、地板、墨绿色石材茶几、剑麻地毯,给人清新、舒适之感。略带混搭气质的禅意现代感。

【效果图】

【实景拍摄】 

墙面装饰比较简约但不失艺术感,同时利用绿植作为点缀,让低调简约的空间释放出清新的气息。看电视的时间也少,有不想完全取消这个物件,所以做了吧台嵌入电视的主体设计

【实景拍摄】绿植搭配让沙发一角的空间更有自然气息和生活气息,营造出慵懒的氛围。
厨房

【实景拍摄】
 厨房及吧台电视墙的结合堪称完美,极具美感又不失实用性,节省了单独打造电视墙的空间。有保证了开放厨房的设计感。
餐厅

【实景拍摄】 
胡桃木质桌椅和格栅背景墙带着几分优雅、几分自然气息,雪山造型的吊顶灯不仅为餐厅空间补充了照明,还能打造出优雅、静谧的就餐氛围。
阳台

【实景拍摄】 
阳台纳入客厅,无论是采光还是视野都得以提升,整个空间的通透感极好。宽敞的落地窗可以将室外的美景(绿植景观带)一览无余。弧形大落地窗确实费了劲了,但是值!
次卧、客卧

【效果图】

【实景拍摄】 

书房兼次卧,看似简单的搭配,却有意想不到的效果。白色提亮空间、拓展空间,木色家具散发自然气息,二者可谓是“天作之合”。

磁悬浮灯

【效果图】

【实景拍摄】 

抽象艺术画、小摆件这些看似不起眼的小细节设计,让室内瞬间充满了艺术气息和灵动韵味,同时还能彰显主人生活品味。

局部装饰

【效果图】

【实景拍摄】 
次卧和书房空间打通,用折叠门设计来做“间隔”,打开折叠门就是一整间大书房,衣帽间空间还能“变身”为壁床,家里来客人也能住得下。几盆绿植的点缀,给人平和、舒适之感,非常符合卧室静谧、惬意的调性
主卧

【效果图】

【实景拍摄】 

主卧的设计以高级灰为底色,胡桃木,灰墨绿窗帘、格栅板,搭配圆形的自然气息装饰画,和谐自然又不失艺术气息,和品质感。

【实景拍摄】

【效果图】

【实景拍摄】 

休闲沙发上方的柔和吊灯设计,简洁而美观,也为卧室提供了更加灵活的照明需求。

【实景拍摄】 

大卧室和对开门是绝配,卫生间门与衣柜门做了同材质整体设计,外观更整体简洁。空间更显大气。

局部

主卫

【效果图】

【实景拍摄】 

卫生间简洁实用,经典的白色为主黑色线条为辅的设计,带来一份不寻常的高级与精致感。整个卫浴空间做了干湿分离,白色的浴缸与整个空间协调统一,它不仅仅是洗澡的工具,更是业主提升生活幸福感、放松身心的重要空间

洗衣房

【实景拍摄】

 在与开发商和物业沟通后,将过道空间充分利用,打造了一个洗衣房,洗衣机上方空间可用于储物,增加了空间的实用性,而且不显拥挤,很有层次感。





鲜花
发表评论

最新评论

手机版|江建业 ( 京ICP备12046991号-1 )

GMT+8, 2026-4-14 10:15 , Processed in 0.052208 second(s), 15 queries .

Powered by Discuz! X3.5

© 2001-2012 Comsenz Inc.

返回顶部