江建业 首页 设计作品 查看内容

大城小镇—走心设计带来现代品质简约的温暖新居

发布者: 江建业| 查看: 358| 评论: 0

摘要: 这套委托作品,也是朋友推荐的业主,业主之前也是各种形式的装修都经历过,就是装不出自己想要的感受和品质。这次通过朋友家装修了解到个人独立设计师的专业度。深入了解设计师做事做人的态度后,果断确定合作。一路 ...
这套委托作品,也是朋友推荐的业主,业主之前也是各种形式的装修都经历过,就是装不出自己想要的感受和品质。这次通过朋友家装修了解到个人独立设计师的专业度。深入了解设计师做事做人的态度后,果断确定合作。一路双方奔着出作品的心态,从设计到落地一路信任到底。作品也是超预期的呈现。作为设计还是特别感谢业主的这种通透的心态。长达一年的合作,大家开心很重要。物以类聚人以群分,能遇见都是最好的安排。
业主家常住三口,男主在家办公居多,所以对于居家环境要求更高一些,这次装修也是换房改善,提升居住品质。环保、安全、耐用、耐看是核心。业主经过之前几次的装修整理的几大不要【硬装不追流行过时太快。比如微水泥地面什么的就还是算了,之前用过的到处开裂性价比极其不高,经常擦过的地方和其他区域光泽颜色不同。无踢脚设计不符合长期居住的实际情况,对于细节要求高的人一般都接受不了完成的细节状态。 不接受纯展示类全开放层板。住进去就会发现有多鸡肋。自身审美不上线的基本住进去就是货架了。不要极简弧度纯造型。我之前就是所谓简的装修今年再看家家都一样。这次卫生间一定用瓷砖,微水泥卫生间的是血泪史,所以这次不追求所谓风格。
原始户型图

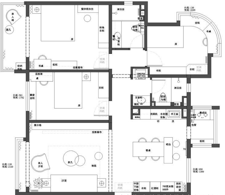
平面布局图

入户设计前

入户效果图

入户实景

1/2









入户视角,可以直接看到客厅和餐厅全景。重新规划的客厅和餐厅厨房空间,开放而独立,在色系上的搭配又似乎浑然一体,进一步扩大了空间视野。功能上沿墙面规整的安排更能收纳,在开放的同时空间也不凌乱。软装上营造低调、略暖、品质感的搭配氛围。灯光方面见光不见灯。生活停留的长时区位,避免眩光的点,抬头能看见光斑也不接受。实际舒适体验度在这一点上很重要。
厅效果图

客厅实景

没有选择所谓玄关独立区域的设计,也是为了让平时家人在空间中感受更舒服通畅的空间体验,而不是为了某一功能而影响大局,做设计一定是要有主次之分,局部服从整体。冰箱一定要嵌入式设计,改造后进门一侧依然有足够的放包换鞋,挂衣的收纳。沙发区域就以纯搭配表现为主,功能和习惯做的纯粹一些,不喜欢模棱两可的模糊界定。地毯,装饰画,沙发,窗帘、摆件等对整体空间调性的导向起到决定作用。少了哪个或搭错哪个都将缺少点感觉。都是设计师千挑万选出来的精品搭配方案。

客餐厅全景

厨房改造前

改造前:改造前的厨房独立空间比较小,区域性不够,色彩搭配稍显凌乱,使得餐厅也很挤。
厨房效果图

改造后实景

我将原有厨房墙体拆除,做成客餐厨一体式设计,空间感明显扩大不少,“俘获”每一平米空间感,创造出更多收纳空间。餐桌上方的多头吊灯设计,使原本的餐厅空间显得更加明亮、通透。氛围感更强。秒变豪宅。


 

客卧效果图

客卧实景

改造后的客卧,大气的设计让整个卧室依然是一个功能全面的休息空间。床边的几盆绿植、蓝灰色窗帘、床品更显舒适、静谧。
次卫改造前

改造前:次卫墙砖杂乱,卫浴和洗衣机的堆砌显得空间非常拥挤。
次卫效果图

次卫实景
改造后的次卫干湿分离,洗衣机干衣机也做了嵌入式设计,借用了部分书房空间,镜柜做灯带背景可提亮空间、拓宽视野,洗手台与收纳柜的设计也很有层次感。
次卧效果图

次卧实景

次卧的空间色彩相对多一点,非常符合儿童房的调性,整体看起来十分和谐又不失童趣。
主卫改造前

改造前:主卫虽有干湿分离,但是色调搭配不协调。马桶区域相对拥挤, 入户门直接正对主卫门。感受上很不好。
主卫实景

改造后,主卫门避开入户门,主卫洗手台下方的收纳柜不仅储物功能强大,而且拿取方便,物品也可以分层收纳。高级灰的淋浴、边框的点缀营造出简约轻奢之美。卫生间还是以功能收纳及舒适度,易打理为主。瓷砖市场变化比较快,设计师特意选择简洁质感,不易过时的搭配,来营造卫生间。
主卧改造前

主卧效果图

主卧实景

高级灰基调与清透的大地色与简约的线条勾勒出极具舒适感的主卧空间,木质、布艺等多材质搭配既诠释了自然的风趣,也让空间愈发呈现出淡雅、别致的气质。床头分色墙面的设计让背景层次更丰富。 一个家,也许不够大,但是别出心裁的设计总能“妙笔生花”,让家变得舒适、惬意、美好,满足业主对舒适家的所有期待。

鲜花
发表评论

最新评论

手机版|江建业 ( 京ICP备12046991号-1 )

GMT+8, 2026-4-18 18:00 , Processed in 0.082792 second(s), 24 queries .

Powered by Discuz! X3.5

© 2001-2012 Comsenz Inc.

返回顶部