江建业 首页 设计作品 查看内容

与自然交织的柔和现代风,温润你的爱宅

发布者: 江建业| 查看: 330| 评论: 0

摘要: 业主是我们十年前的老客户......世间如白驹过隙,十年光阴转瞬即逝。感谢业主的认可和信赖,给了我一个再次导演此次装修的机会!户型图▲原始户型图▲设计平面布置图 ①户型是紧凑型三居室,原户型厨房和餐厅相对独 ...
业主是我们十年前的老客户......
世间如白驹过隙,十年光阴转瞬即逝。
感谢业主的认可和信赖,给了我一个再次导演此次装修的机会!
户型图

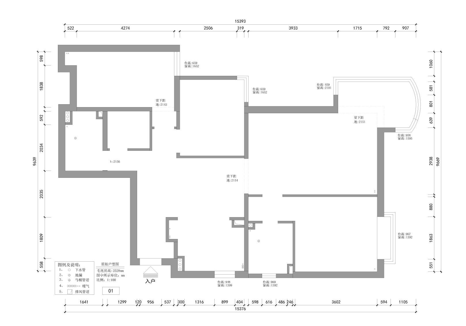
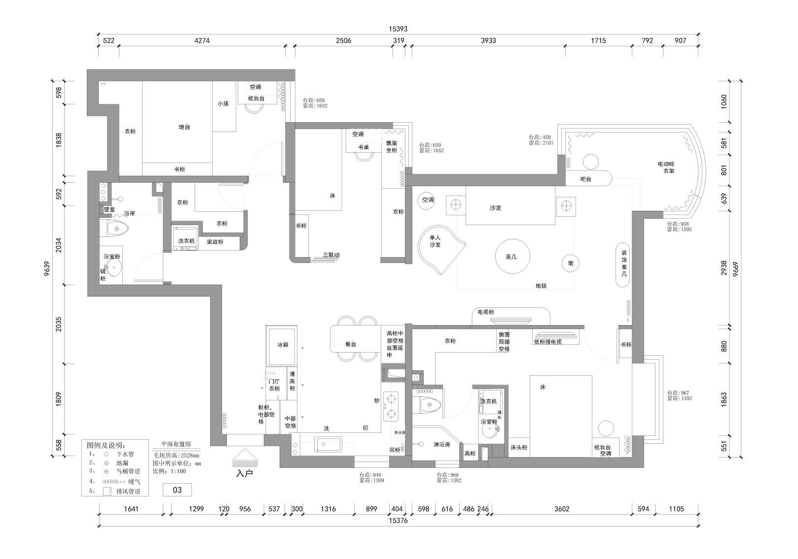
▲原始户型图

▲设计平面布置图 ①户型是紧凑型三居室,原户型厨房和餐厅相对独立,比较拥挤。设计后打开餐厨共享空间,次卧也把门开向了餐区,做了联动,这样白天门打开,显得公共区域非常开敞。 ②原户型 主卧门的位置使得,客厅电视墙比较偏,主卧私密性差。改造主卧进门位置后,客厅空间更整体,主卧私密性更强。 ③原储藏间外过道没有利用上,设计后的空间把过道也做了对外的收纳,让使用更方便。门厅位置用背靠背柜子来做收纳利用,一半给门厅一部分给厨房。这样做空间整体的情况下,墙体显示的范围少就显得空间大。
玄关

▲入户第一眼,一股清新温润的自然气息扑面而来。低饱和度的暖色配色结合武装到各个表面的亚光质感,给整屋带来无比的舒适感。玄关侧边为定制的双面墙柜,作为日常收纳十分便利,柜体下方预留一排悬空位,平时进入家门鞋子可以非常快捷的隐藏摆放,出门时也不用打开柜门,方便拿取。左侧护墙板的设计可以避免背靠换鞋和挂衣把墙面弄脏。黑板漆的分割功能效果两不误。这些细节大家可以做好笔记,相当实用。
客厅

▲客厅硬装以简约为宗旨,浅暖灰色的墙面少用杂乱的装饰,平整流畅的线条带来更多简约的时尚感,夹层浮雕贯穿墙面,圆角矩形的造型宛如一台圆润精致的iPhone手机,给墙面拐角的生硬做了很好的掩盖同时延伸了背景的长度感受。

▲天花部分采用平顶造型,简约大气,客厅用了主灯加局部明装射灯的组合。铜质的环形主灯,大小合适,造型也不会臃肿,给头部空间做到了很好的点缀,也为客厅增添了一些精致感和均匀的照明。

▲自然色系搭配的组合沙发,云朵般不规则造型的地毯,精致小巧的茶几和圆润的电视柜,将整个客厅气氛烘托得温柔舒适,鲜绿的植物给整个客厅注入了更多的生机与活力。
餐厅

餐厅咖色和奶白色家居,很有质感,而且整个餐厅空间的视野也很开阔。我们可以看到,次卧的门开向餐区,做了联动,白天打开门,空间更显通透。

▲原户型厨房和餐厅独立设计空间比较拥挤,经过规划设计后,实现了餐厨一体式共享空间,实用极了。餐厅与厨房为整体化设计,我将厨房侧面的定制柜延伸出餐桌台面,搭配皮质简约餐椅,对于空间的占据非常小,为客厅节省下更多的活动空间。同时也大大提高了餐厨之间的互动性,设计应以人为本。
厨房

依然在餐桌上摆放了绿植,暖色系吊灯,打开后整体氛围很温馨,让屋主拥有更美好的“食”光。

▲白色岩板上墙设计,设计感十足,给人以明亮、清新、时尚之感,赋予整个厨房空间更高的颜值。打开后的厨餐厅形成一个开放式的空间,大量灰度原木材质的运用为空间增添了许多清新感,家用电器高度集成在定制柜中,整个平面平整简洁,开放的空间与餐客厅贯通一体,视觉通透感极佳。所有柜体一门到顶只留几毫米缝隙。
卧室

▲主卧的开门位置原本比较靠近电视墙偏中部,导致隔断墙能利用的空间较小,电视摆放位置无法居中,我们将卧室门靠侧面改动,保证了更好的客厅墙面布局,也让卧室的私密性得到一定的提高。
次卧

卫生间

▲客卫通体采用哑光瓷砖对地面和墙面进行覆盖,整体看上去更为温馨柔和,智能马桶的选用也提升了业主的生活品质。白色的卫浴产品和淋浴喷头是比较推荐的,后期看上去不会显脏显旧。淋浴间用浴帘遮挡,最直接的感受空间瞬间增大,没有玻璃隔断,洗完澡需要拖一下地。有一个优势是不用擦那大面脏点聚集的玻璃了。这个问题根据自身需求来取舍。

▲卫生间使使用频率非常高的一个空间,在设计规划上也颇有讲究。为此,我们将卫生间区域做了细分,主卫与客卫的设计理念基本一致,只是在墙面上选用了实木花纹的瓷砖,相对更自然温馨。暖暖的色调可以让冬季沐浴带来一丝丝视觉上的温暖,也算是一个贴心的设计。

鲜花

最新评论

手机版|江建业 ( 京ICP备12046991号-1 )

GMT+8, 2026-4-14 15:35 , Processed in 0.027618 second(s), 15 queries .

Powered by Discuz! X3.5

© 2001-2012 Comsenz Inc.

返回顶部