江建业 首页 设计作品 查看内容

细节控的现代风美居,诠释暖色系的艺术与魅力!

发布者: 江建业| 查看: 151| 评论: 0

摘要: 现代极简原木风不仅可以塑造一个舒适实用的生活环境,还可以带来良好的身心状态。作为作家的独居小姐姐对事业和生活都有着强烈的秩序感,独爱沉静低调的氛围,所以,在新家装修上,考虑最多的是居住的舒适度。在初步 ...

说在前面

现代极简原木风不仅可以塑造一个舒适实用的生活环境,还可以带来良好的身心状态。作为作家的独居小姐姐对事业和生活都有着强烈的秩序感,独爱沉静低调的氛围,所以,在新家装修上,考虑最多的是居住的舒适度。在初步沟通中,本案以温和的奶油色作为基调,辅以温润细腻木材硬软装附件装饰,使得整个空间层次分明,温暖又浪漫。设计师采用大量原木贯穿整个空间,彰显生活的品质与格调,整体灵活的动线勾勒出和谐秩序的空间格调,增添个性化,满足业主最基本的生活需求与生活品质。

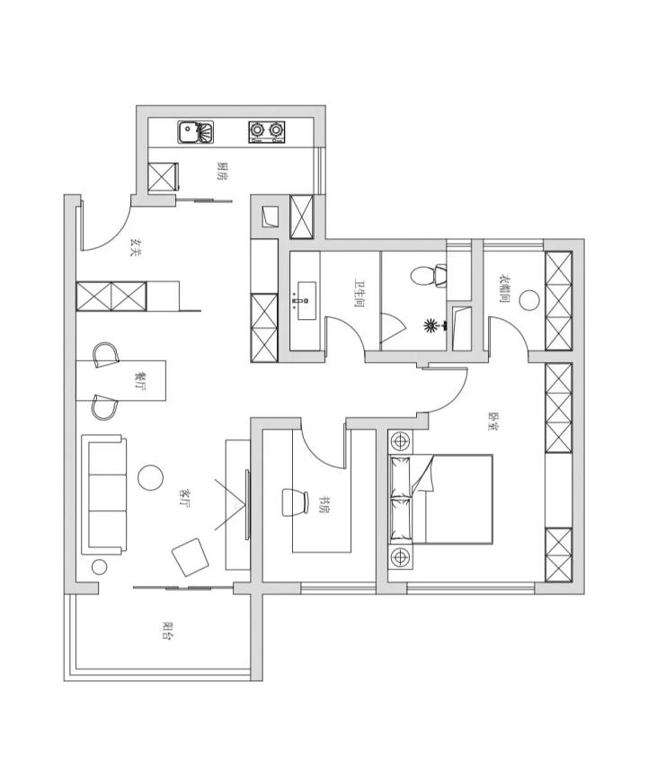
平面布置图

1. 主卧作套房模式设计,配备封闭式独立衣帽间,有足够收纳空间的同时防尘性能极佳,打造沉浸式体验,提升屋主居家幸福感。

2. 房屋因地制宜,独立书房设计,打造修身养性,工作写作独立空间,满足屋主作家职业需求,更加专注从而提升工作效率。

3. 在原始结构图的基础上进行设计,满足屋主所需。

4. 借用玄关空间,打造半遮半掩独特设计,作端景台点缀,提升生活品质,满足屋主需求。

玄关

玄关这样设计,给予归家足够的仪式感~。以简洁利落的设计感搭配柔和细腻的色彩,使空间游离在秩序感与艺术性之间。奶油色的主色调,搭配原木地板,视觉上更显简约高级。底部留空玄关柜设计点缀上绿植摆件,营造空间呼吸感。

#玄关#玄关柜#地板#色调#线条


自然光与壁灯的对比,各有所长,营造出现代简约,低调的时尚氛围,激活都市新贵的理想审美。整体入户柜+玄关端景太吸睛,进门就显范儿。增加壁灯设计,营造氛围感和照明的关键,中和了采光不佳的弊端,壁灯美观且安全实用。

#玄关#壁灯#端景台#玄关柜

客厅

 

 布艺沙发联动着圆形软糯灰调地毯,以一种朦胧温柔的姿态表达着空间的情绪~,整体黑色创意小茶几灵动的性质,搭配一侧壁龛式装饰台,点缀其中,盛满优雅的空间格调,精致感和舒适的氛围保留对生活的纯粹热爱和艺术。客餐一体的设计,原木质感的餐桌让家呈现出极简之美的意境,静享生活的美好。

#客厅#客餐一体#地毯#沙发#茶几#壁龛

客厅着重于柔和的色彩打造空间,在材质上的选择上,多选择米色,木色等,营造宁静的居家氛围,空间布局上加入巧思,作悬空电视柜设计,哑光的质感+落地门窗纱帘的隐隐光斑,家仿佛被渡上了一层温柔的滤镜~平顶无主灯带来的视野开阔性,干净到让人无缝拒绝的美貌,邀你共赏。

#客厅#电视柜#落地门窗#纱帘#无主灯#平顶

 

自然舒适的气息充斥着整个空间,以现代简约的设计言语,以简胜繁,通铺的木质地板温润细腻,赋予整个空间舒适悠闲的治愈感~。整体没有过多的修饰,以大量留白为主,搭配奶油色布艺沙发,身居此处,踩在软乎乎地毯上,理想中的居家生活,慵懒且随意。

#客厅#沙发#地毯#地板#留白

餐厅

餐厅是增加家庭生活氛围的核心,整个餐厅通透一览无余,开放式的客餐一体化设计,让餐厅的定义不止是吃饭用餐的单一空间,亦然是整个家中绝美的体验分担者。带有天然纹理的原木餐桌餐椅,透着自然舒适的气息~,统一风格的原木地板通铺,成就了这个流畅的开放式全能空间。

#餐厅#餐桌#餐椅#客餐一体#地板

现代原木风餐厅搭配深色胡桃木质感满满。餐厅作常规化设计,靠墙作精致的硬装造型,方形餐桌与餐椅相呼应,自带纹理,透过玄关端景,整体呈现浪漫温馨的感觉,原木的质感,清新的氛围,在这里约会再好不过了。以黑色吊灯作为点缀,局部重点灯光为用餐提供了氛围感,餐厅一侧连接动线流畅,餐厅—玄关—厨房,划分空间的同时,还可以隔绝厨房烟火。

#餐厅#餐桌#餐椅#吊灯

厨房

素简的装饰保障居住的功能需求,去繁就简,获得心灵的满足与畅意~。厨房独有的生活气息,延续客厅通铺原木地板,厨房一字型布局并列排开+玻璃门,厨房的颜值兼具实用都有啦~。一眼望去,便是奶油白橱柜+吊柜设计,沿墙面一字排开,简洁明了,所有厨房操作在一条线上完成,每个柜子得到充分利于,所有设备一目了然。

#厨房#橱柜#吊柜#地板#一字型#玻璃门

卧室

低调简约卧室设计,吸睛又舒适,一种以无胜有,以少胜多的设计风格。卧室整体色调采用奶油色系,窗台+梦幻纱帘朦胧的氛围带来一系列化合反应,配合得天衣无缝。融入米色衣柜元素,简洁流畅,洋溢着现代文艺风情。

#卧室#窗台#纱帘#衣柜#色调

原木床头+床头柜,勾勒出温和沉淀的空间质感,墙面一盏暖光床头灯,波光粼粼水光,呈现出居室温馨而不失活泼的氛围。软糯双人床搭配毛茸茸毛毯,富有美感,不多占用空间,经典耐看,软包靠枕,大气又沉稳,带来不一样的舒适感,睡前在床上阅读追剧,或者娱乐游戏,享受舒适的松弛感~

#卧室#床头柜#双人床#毛毯#靠枕#床头灯

干干净净的设计真的很抓人心,不仅美观还实用,每一处的光线都恰如其分。卧室打开后,通铺的原木地板,背靠衣柜Y椅日式马克椅搭配趴趴熊懒人北极熊靠枕,这么舒适的休息角谁看了不迷糊!加之木质元素的运用,空间更温柔舒适,独爱这份少女范。无论休憩,阅读或者思考都能找到内心的宁静与安定。

#卧室#地板#马克椅#靠枕#衣柜

衣帽间

主卧作套房模式,配备独立步入式原木极简风衣帽间!整个空间采用大量的木饰面,打造温馨的自然空间氛围~衣帽间藏于卧室中,作开放格+储物柜设计,叠放悬挂区衣物一目了然~一侧光影氛围层次感满分!下方抽屉收纳柜,收纳能力强。一张休闲椅置放衣帽间,方便拿取时休息片刻。

#衣帽间#储物柜#开放格#抽屉#吊柜#休闲椅

书房

人生小确幸,这样的书房真的太好宅了!对于现代人来说书房不仅仅是学习的载体也常常是我们办公,娱乐休闲的空间,所以,书房的装修应该是轻松,而不拘谨的。窗台+黑色百叶帘设计,不同于平常设计,以黑色作为首选,打造低调高级感,质感越看越喜欢。书桌呈现U字型设计,搭配休闲椅围绕整个空间,既保留了原有结构又实现了学习自由。

#书房#书桌#休闲椅#窗台#百叶帘

艺术漆墙面设计,点缀精致生活。低饱和与高级灰的搭配,水波纹的肌理,透过窗台的点点微光,点缀了暗淡的墙面,在不同时间光线灯光的照射下,呈现出不同的纹理与质感,高级黑储物柜设计,各类收藏品与装饰物的精心摆放,使得整个空间变得丰盈充实。下方储物柜+书桌一体式,加之绿植,美丽浪漫中带了一份安逸宁静。

#书房#书桌#储物柜#墙面#绿植#窗台

卫生间

卫生间作为一所屋子最隐私的空间,以往我们更关注卫生间的实用性,现如今,年轻人对生活品质要求越来越高,卫生间微水泥墙砖的使用,做了干湿分离玻璃隔断好看又通透,没有过多的元素,让极简之中也能保持高级感,这样好看的卫生间搭配恒温黑花洒才算满分~

#卫生间#花洒#墙砖#干湿分离#玻璃隔断

问答

1.前期设计与后期装修花费多长时间?

前期设计花费1个月,后期装修花费5个月

2.你对这套作品最满意的地方在哪,为什么?
最满意的地方在于现代极简原木风的准确把握与完美呈现。大量采用原木与奶油色调进行构造,留白点缀营造出属于居者的心安之处。适当加入玻璃等其他色彩现代元素提升整体层次。

3.说说是什么给了你灵感。打造出现在这个作品?
将屋主对于极简原木风的向往与自生所带的平静随和气质作为基础灵感将质朴的材质与开放通透的空间结合,呈现处自然的力量与意境,让居家生活回归到一种自然的生活状态,让人的内心归于平静。

4.回头看这套房子设计中你认为还有什么遗憾或缺陷吗?
没有遗憾的地方,每一个地方都经过了我们与屋主的讨论与精心修改,没有放过任何一个小细节,为客户打造出最适合他们的设计。


鲜花

最新评论

手机版|江建业 ( 京ICP备12046991号-1 )

GMT+8, 2026-4-14 15:35 , Processed in 0.042846 second(s), 15 queries .

Powered by Discuz! X3.5

© 2001-2012 Comsenz Inc.

返回顶部