江建业 首页 设计作品 查看内容

原木+禅意,温暖的空间,住进偏爱里,享受宅家的每一刻! ...

发布者: 江建业| 查看: 197| 评论: 0

摘要: 说在前面空间氛围朴素,静谧,自然,好似在老旧的物体外表下,显露出的一种充满岁月感的美,它让人们忘却自我,直至无我境界,只剩下平静及大自然的神往!本次案例的屋主从事教学工作,对于房屋的装修风格经由家里的 ...

说在前面

空间氛围朴素,静谧,自然,好似在老旧的物体外表下,显露出的一种充满岁月感的美,它让人们忘却自我,直至无我境界,只剩下平静及大自然的神往!本次案例的屋主从事教学工作,对于房屋的装修风格经由家里的影响,原木风经典永不过时,耐看耐住,女主人对于中国古典风情有独钟,因此在原木风基础上加上禅意元素。加上对于收纳的需求,在于简洁不冗杂,让整体空间看上去宽敞大气,因此卧室作套房模式配备独立衣帽间增加收纳,提升生活质量,在各处细节也有所体现。

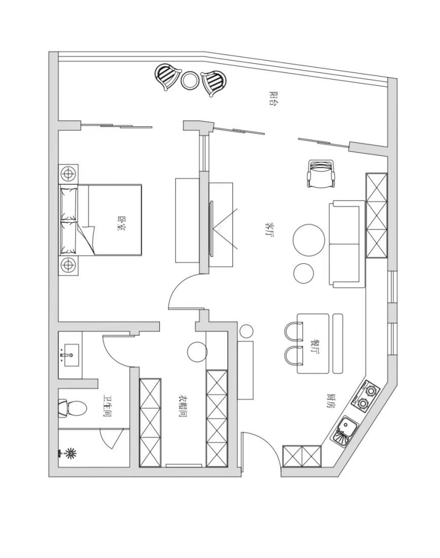
平面布置图

1. 开放式餐厨客一体,显得整个空间开阔,动静分区合理,为左右动态,左侧为会客区餐厅热闹交流,右侧卧室相对安静休闲!

2. 主卧作套房模式,配备独立卫生间与衣帽间,满足屋主日常收纳需求,提升生活质量。

3. 结合阳台空间满足房屋采光所需,大阳台设计满足功能的同时兼具美观,形成自然光线引入室内,形成一个光线,通风,景观都非常的独立阳台空间。

4. 原始精装房结构没有做大量的修改,而是通过软硬装来调控空间使得居住者更舒适的居住体验。

客厅

客厅突出原木风的禅意静雅,沙发软装采用永不过时的米白色,一张流苏深色毛毯可以根据需求随意调动,玩耍观影更方便~原木地板,沿着线条可以游览全局,原木风搭配复古禅意茶几,深色调升腾起温馨和舒适,一种归属感油然而生!

#客厅#茶几#沙发#毛毯#地板

软糯布艺沙发,现代写意生活,简洁的线条书写慵懒舒适感,尽显风度翩翩。原木沙发背景墙将整个空间氛围揉进原木风色调,和谐雅致具有层次感。造型独特高低搭配茶几与灰色毛绒地毯相得益彰,身居此处,浪漫的情怀踏着复古禅意的轻快步伐而来!

#客厅#茶几#沙发#地毯

客厅的沙发背景墙是整面的原木皮木饰面,颜色是浅色系木色,自带纹理。为了赋予场景丰富性,软硬装部分推出原木储物柜增大收纳空间,开放格+封闭格,摒弃传统储物柜以一体式代替,摆放上绿植,陶瓷,摆件等活动式家具自由切换情境。上方格栅的点缀,揉塑一幅名为生活的特写镜头!

#客厅#储物柜#摆件#绿植#背景墙#格栅

侘寂风圆形木墩实木茶几有机线条增加灵动感,高低不一,打造错落有致的多种布局,增加空间立体感,置物也更方便。客厅采用米白色沙发+灰色地毯+胡桃木茶几,利用均匀分布的色调,拉高空间视觉感,加之自然光的落入,让光线均匀分布客厅每一个角落。这样的设计更禅意偏好简洁,一眼望过去美观且自然。

#客厅#沙发#茶几#地毯#线条

客厅整体通铺原木地板,与卧室使用连接起来,温润又质朴,整面电视背景墙选用浅色原木,自然而不平庸,简简单单,经久耐看,凹凸有致的墙面与设计独特的电视柜,更立体更有层次感,柜角的设计让整个电视空间,更具特色,不显单调呆板!

#客厅#地板#电视柜#背景墙

原木禅意阳台改造,远方与诗在家也可以拥有!大面积的阳台设计,就是治愈自己最好的方式,为自己造一处居心地,闲谈,饮茶,观景,统统安排上。以原木地板搭配原木茶几,自然光畅通无比,透过外界进入室内,空间感更加开阔,层次感也更加分明!使阳台成为了全家休闲的好去处,当然同套休闲椅可少不了。

#客厅#茶几#阳台#休闲椅

餐厅

餐厅的灯笼造型吊灯凸显了几何图形和建筑空间结合的自然,和谐艺术风范,巧妙的实现了空间美学与实用性的完美结合。方形的原木餐桌承载着年轻人小家庭四季三餐的点点滴滴。茶具,餐椅,吊灯 ,不仅凸显屋主都不凡品位,也彰显着富有情趣的禅意空间!

#餐厅#餐桌#餐椅#吊灯

温润的木质台面,细腻的纹理,搭配深色掉原木餐椅,在简朴复古茶具的陪衬下,散发出轻松而慵懒的闲适氛围。而原木地板与餐厅的构造,一切围绕“原木与禅意”设计,适当的留白,也使得整体空灵有质感!拉近细节,餐桌边角呈钝形,消除锋利感,营造更为柔和舒适的就餐氛围。

#餐厅#餐桌#餐椅#茶具

家的模样,决定了生活的模样。运用最接近自然的原木元素,原木餐桌+原木餐椅+原木地板,整个空间以木色为主基调,靠墙黑木深色纹餐边柜作跳色,线条刚柔并济流畅自然,呈现出饱满的质感和高级感,搭配上台灯装饰画,是艺术也是家!

#餐厅#餐边柜#装饰画#餐桌

摒弃繁杂,简单的白色天花,搭配原木元素,温柔淡雅凸显质感!两盏吊灯自上而下置于餐桌上方,局部重点灯光为用餐提供了氛围感,隐隐约约的原木背景打破了传统餐厅的刻板印象。当然,巧妙的留白也让空间更有故事感,让光影,木质,空间揉为一体,自然悠缓的就餐环境!

#餐厅#天花#吊灯#餐桌

厨房

餐厨一体的设计使得整个空间呈现出连续性与统一感。厨房区域是舒适的原木+白配色,开放式的结构让空间视觉纵深感深邃,打造互联互通的沟通感!餐厅储物柜连接至厨房橱柜作一体设计,切洗炒动线合理分配,最优充分利用每一寸空间。地柜+吊柜的组合,满足各种收纳需求,筒灯安插至橱柜上方,满足备菜区光照需求,描摹居住者优雅的生活状态与情调。

#厨房#橱柜#吊柜#筒灯

主卧

卧室作套房模式配备独立卫生间+衣帽间满足屋主日常所需,通铺原木地板原木床身搭配格栅床头背景墙无不彰显屋主所爱,在最大程度上给予观感上的舒适度。中古元素床头柜与整体氛围相融合,摆放的绿植+一盏吊灯承担卧室亮色,原木背景墙的保留让居住者慢享生活欣赏日月更变

#主卧#套房#床头柜#吊灯#背景墙

整间卧室用到两种颜色,木地板,床头原木背景墙,大白漆,材质冷暖的对撞赋予了空间另一种平衡,木色电视柜+格栅在空间中相互契合,保持着整体性,室外阳台透进来的光,柔和且舒适的木质房间营造出宁静的气场。

#主卧#电视柜#阳台#格栅

活有态度,住有温度,从舒适的床醒来是一种享受,当然卧室配备独立梳妆镜的威力也不容小觑。靠门打造独立黑木纹梳妆台+木墩休闲椅,一侧储物柜设计,完美的利用房间资源,整个空间质感十足。格栅的墙面搭配吊灯,它独具的返璞归真自然质感萦绕整个卧室空间!

#主卧#梳妆台#格栅#休闲椅#储物柜

衣帽间

主卧配备独立衣帽间,与卧室动线流畅,根据屋主生活习惯制定衣帽间,每一个小物件都有它该去的地方,衣物收纳方便就像在呼吸!顶天立地收纳柜,衣柜设计叠放区+挂衣区,四季的衣物都得到合理收纳!装配上灯带,衣柜布局动线流畅,氛围感直接拉满!

#衣帽间#衣柜#挂衣区#叠放区#灯带

卫生间

原木风追求原生态木质,柔和淳朴的质感,进入此空间,给人的第一感官便是素雅,禅意的原木风气质,简洁的原木洗漱柜搭配温暖的色调,呈现出干净纯粹的清新气息~一墙之隔的智能马桶放置井然有序,柔和的灯光,洗漱台的白色台面台盆,不同材质的叠加,增加层次感,暖光灯下呈现出静谧的氛围~

#卫生间#洗漱台#智能马桶#台面#筒灯

 

问答

 

1. 说说是什么给了你灵感,打造出现在这个作品的?

原木的家的灵感源自对自然和质朴生活的热爱。业主希望自己的家能充满温暖、舒适,同时又富有个性,这点与我的审美不谋而合。

 

2. 你对这套作品最满意的地方在哪里,为什么?

满意的地方当然有很多啦~比如地板和墙面的选择,都是经过精心搭配的结果;还有电视以及电视背景,摒弃了传统,十分简约清爽;包括整个光线的搭配也十分恰到好处;甚至玄关落到客厅茶几、床等也是千挑万选的结果。一个好的居家体验,离不开软装的搭配。

 

3. 在整个装修设计期间遇到最大的挑战是什么?

家具的选择,尤其是原木材质的软硬装搭配。比如在墙面上的选择上,就看了十几家,最终选择细腻有质感原木隔栅。包括橱柜、茶几、电视柜等,都是十分用心的选择……过程虽然是个挑战,但是快乐。

 

4. 为了满足客户的个性化需求,你在设计过程中做了哪些事情

为了满足业主对于衣帽间的需求,我们将衣帽间卫生间等纳入主卧,打造独立沉浸式休闲场域,独立衣帽间解决全屋收纳。

 

5. 回头看这套房子设计中你认为还有什么遗憾或缺陷吗?

没有遗憾的地方,每一个地方都经过了我们与屋主的讨论与精心修改,没有放过任何一个小细节,为客户打造出最适合他们的设计。

 

 


鲜花

最新评论

手机版|江建业 ( 京ICP备12046991号-1 )

GMT+8, 2026-4-14 15:35 , Processed in 0.047708 second(s), 16 queries .

Powered by Discuz! X3.5

© 2001-2012 Comsenz Inc.

返回顶部