江建业 首页 设计作品 查看内容

现代轻奢别墅,温柔的向往,同享自然与烟火

发布者: 江建业| 查看: 271| 评论: 0

摘要: 把生活调成自己喜欢的频道每一段时光都藏着不可复制的美好,在细碎的日常中捕捉生活的幸福感。这是原始户型为双层别墅的一套住宅,住宅的屋主是一对恩爱非常的夫妻,是同龄人中的佼佼者,有着美满的家庭体面且高薪的 ...

把生活调成自己喜欢的频道每一段时光都藏着不可复制的美好,在细碎的日常中捕捉生活的幸福感。这是原始户型为双层别墅的一套住宅,住宅的屋主是一对恩爱非常的夫妻,是同龄人中的佼佼者,有着美满的家庭体面且高薪的工作。对于新家他们有着无限美好希冀,两人都爱好质感且舒适的家居氛围钟爱现代轻奢风。结合屋主的喜好以细腻的手法为居者打造出温馨舒适的休憩、学习、办公和娱乐场所,同时在设计中大量加入低调、品质、哑光、质感、空间感、无主灯、悬空等元素有机组合出居者心中的世外桃源。

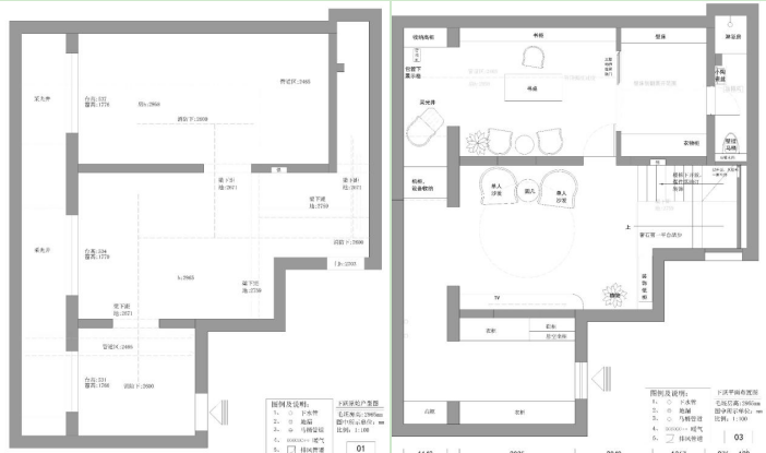
下跃平面布置图

1.原始精装房结构没有做大量的修改,而是通过软装来调控空间使得居者有更舒适的居住体验。

2 楼下主要以影音室加书房为主且增加的收纳缓解楼上厨卫的压力。

3.书房阳台区域的墙面通过组合装饰镜来造窗景缓解压迫感。增加透气感。楼下书房内还设计了衣帽间内置壁床兼临时客卧。以备用不时之需。

4.增加的收纳缓解楼上厨卫的压力。楼下阳光过廊区域墙面为了减少压迫感,设计了一面渐变的夯土墙面,视觉效果上更有延展性。

 

一楼平面布置图

1.客厅与餐厨开放一体的设计与院子的连接外墙拆除以落地窗的形式展现,让空间采光以及通透性得到最优化。

2.一层楼梯位置栏杆用了通透的超白玻璃扶手,原空间北卧室和厨房空间比较窄,家中来客少,所以我们将厨房和北卧打通做了大厨房中间配备岛台做到全屋视觉效果的开阔明朗。

3.将原卧室的卫生间独立出来作为一楼的公共卫生间使用缩短使用动线更方便日常起居。

 

下跃客厅

从楼梯下来便是下跃客厅,阳台纳入客厅在无主灯设计的配合下显得空间旷然高挑。利用筒灯于自然光线为客厅纳入充足光线。地面通铺原木拼接地板带来温润平静质感。偏粉调的墙面也昭示着整个客厅柔和治愈的家居风格。

#客厅#阳台#平顶无主灯#筒灯#地板#墙面

 

复古皮质沙发靠墙摆放,沙发地毯可移动电视架简单灵活的组合模式在承担会客、观影功能的基础上,客厅的意义反而更多的偏向于休闲放松。去茶几设计以极简的修饰手法释放出更多的空间感,在应对未来生活场景方面也留足空间给居者随意设置加深空间的互动感和体验感。

#客厅#沙发#地毯#可移动电视架#去茶几设计

 

客厅整体以大面积的白色为主调辅之以低饱和的原木色融入质地柔和的家居和生机盎然的绿植,带来悠闲自在的空间氛围。电视背景墙的设计遵循删繁就简的原则,大面积留白凸显利落干净。原木电视柜选择简约的款式与整体空间调性一致。一侧放置原木置物架承担收纳功能的同时也丰富了空间层次。

#客厅#电视背景墙#电视柜#置物架#绿植

一楼客厅

 

透过楼梯便来到了一楼客厅空间,一层楼梯位置栏杆用了通透的超白玻璃扶手让空间具备悬浮感。宽敞明亮的客厅归功于地面通铺的白色瓷砖+平顶无主灯设计。筒灯组合灯带带来多种灯光模式丰富着室内光源。落地窗带来的通透采光将温柔质感肆意挥洒。

#客厅#楼梯#瓷砖#无主灯设计#筒灯#灯带

 

一楼客厅重新规整布局,依次排开前后整合一体,节省空间且保证视野开阔通透,同时不影响各主功能区。客厅安装中央空调调控室内温度,落地窗带来的通透采光将温柔质感肆意挥洒双层帘设计随意切换光源模式。

#客厅#一字型布局#中央空调#落地窗#窗帘

 

棕色皮质沙发柔软舒适于墙面装饰画在色系上勾勒出经典轻奢氛围。铺设地毯增强客厅整体层次感,原木茶几选择低矮造型也更有益于将视线上移,不同材质在同一个空间维度碰撞出和谐且高级的视觉效果。

#客厅#地毯#沙发#茶几#装饰画

餐厅

餐厅与开放式厨房居于同一空间下,生活动线最优。餐桌选择岩板材质既轻便又不缺乏支撑力,选择长形餐桌可容纳多人用餐黑色透露出高级质感。配套餐椅选用细腿减少不必要的空间占用。顶部一盏线性吊灯简单利落的线条规划出秩序感。

#餐厅#餐桌#餐椅#吊灯

 

厨房

厨房布局在楼梯的另一侧,极致开阔简约的布局进一步带来了公区空间各自独立却紧密相连的视觉呈现效果。开放式厨房配备中岛经典搭配不仅仅是使用功能上的便利同时也凸显居者生活品味。中岛也可作为临时餐桌组合上吧台椅休闲娱乐的好去处。

#厨房#开放式厨房#中岛

 

厨房采用L型柜体与一字岛台围合而成,左侧整面原木柜体留出中部空间用于收纳杯具及酒水之类,方便挑选拿取又起到点缀装饰的作用。双开门冰箱、烤箱、洗衣机等做嵌入式设计并排排列动线孙畅便捷。小型的一字岛台则作为补充台面,又可作为备餐区、临时搁置台使用减轻厨房操作台面压力。整体深色调也让日常清洁工作很大程度上减轻。

#厨房#岛台#厨房布局#橱柜#冰箱#嵌入式

主卧

主卧以简约舒适为主没有做复杂的墙面造型,吊顶也是采用的大平顶,无主灯设计增加空间的开阔感。地面平铺原木地板深色木纹储物柜与暖色系双人床遥相呼应构成温暖和谐的空间语境。床头一盏球形吊灯搭配灯带将主卧光源完美支撑,向外开出一扇窗户为主卧引入自然气息。

#主卧#地板#储物柜#灯带#吊灯#窗户#地板

 

次卧

次卧在氛围营造上更倾向于沉稳内敛。房间整体色调为深色系,双人床靠窗摆放,小巧床头柜居于两侧承担起收纳随手之物的功能。右侧空间放置原木书桌作为看书办公的场所,合理利用空间的同时又拓展使用功能。书桌上方摆放台灯保护居者视力,人体工学椅带来舒适办公体验。

#次卧#双人床#地板#书桌#床头柜#椅子#台灯

 书房

考虑到屋主的日常所需独立设置书房,通铺的原木地板将书房包裹在温暖治愈之中,墙面采用同色系艺术漆料配合上灯带筒灯塑造出沉浸式学习环境。书房中央摆放原木书桌配合学习椅一切都井然有序。书桌后整面书柜组合开放格于封闭柜多种储物形式,满足不同收纳需求。里侧摆放皮质按摩椅学习放松两不误。

#书房#书桌#椅子#地板#墙面#书柜#按摩椅

 

影音房

如果说地上空间是生活所需,那么地下空间则是生活的延展我们将空间打开以模糊化的空间界限构建别墅的专属休闲区。影音式以打造沉浸式观影体验为主基调,去掉多余的修饰,通铺原木地板配置投影仪与电视机满足不同观影需求。墙面绘制艺术画为生活带来诗意。

#影音室#投影仪#地板#电视

下跃阳光连廊

这里不仅是一个艺术与休憩的休息区域,还是一个思考与创新的源泉,供人放松心情,连廊的设计顶部作玻璃质感,外界的阳光照如室内,具有透气感,脱开部分还可以置入景观,打造出轻轻自然的走廊空间。内部通铺原木地板,搭配白墙,秩序感与对称性更强,将视觉的延伸性作为重点,放眼望去,便是靠墙一盏灯,弱化其他元素, 增强空间趣味性!

#连廊#玻璃#地板#墙面

廊道作为连通景观与景观的公共空间其自身也可作为一种通道景观结合其自身的线性特征为大家带来一种纵深的景观体验!长廊设计中避免了缺点,充分利用优点,使它变得既美观又实用。天花作木饰面设计,墙面点缀上筒灯,精致又高级,无形中由内到外,生活与艺术,顺势而为的巧妙过渡,神秘与意外之间的对话桥梁!

#连廊#筒灯#墙面

卫生间1

 

整个卫生间空间具有现代感的同时高级耐看。大理石地砖通铺的空间,极具纹理,使得整体更加简洁,大方,干净。再以白色的洗漱台搭配白色智能马桶很好的诠释了颜值与实用兼具的空间。镜柜设计将洗漱用品隐形收纳,底部安装灯带氛围感拉满。

#卫生间#洗漱台#智能马桶#墙砖#地砖#镜柜设计#灯带

 

卫生间布局井然有序依次划分出洗漱区和领域,干湿分离互不打扰,提高生活便利性。淋浴区依靠不同花色的瓷砖装点,肌理丰富描摹出品质生活。玻璃门采用磨砂质感得到隔而不断的效果。

#卫生间#干湿分离#瓷砖#玻璃门

卫生间2

 

卫生间布局合理有序简单清爽,大理石台面干净易清洁,悬浮式设计减少卫生死角镜柜设计带来隐藏收纳空间,安装灯带卫生间更有幸福感。卫生间加入浴缸提升生活品质。

#卫生间#洗手台#镜柜设计#浴缸#灯带

 

问答

1.装修过程花了多长时间?

前期设计花费6个月,后期装修花费9个月

 

2.你对这套作品最满意的地方在哪里,为什么?

最满意的地方在于功能化的平面布局改造,空间围绕楼梯展开同时在各层设置不同功能的区域,考虑到各个区域的使用感受,加入影音房书房等多方位满足屋主各项需求。

 

3.对平面布局做了哪些优化改动,为什么?

主要的改动:一楼侧墙的拆除,以玻璃材质重新塑造,使侧院在感官上融入空间;楼梯位置的调整变动和局部挑空设计;二楼整个外设备台纳入以及重新进行合理的分区等,让室内外、上下层之间都能够产生良好的互动关系

 

4. 说说是什么给了你灵感,打造出现在这个作品?

结合屋主一家的需要以及住宅本身的情况进行设计,打造这个现代轻奢的别墅空间,每层空间相互独立又相互联系,开合有度让屋主一家生活更加舒适。

 

5.回头看这套房子设计中你认为还有什么遗憾或缺陷吗?

没有遗憾的地方,每一个地方都经过了我们与屋主的讨论与精心修改,没有放过任何一个小细节,为客户打造出最适合他们的设计。

 

 


鲜花

最新评论

手机版|江建业 ( 京ICP备12046991号-1 )

GMT+8, 2026-4-14 12:50 , Processed in 0.041224 second(s), 15 queries .

Powered by Discuz! X3.5

© 2001-2012 Comsenz Inc.

返回顶部