江建业 首页 设计作品 查看内容

以清新素雅之名,守护家的静谧舒适

发布者: 江建业| 查看: 515| 评论: 0

摘要: 家如其人,我们在现代美学中寻找静谧的力量,感受家带来的柔情与舒适。本期案例的屋主是同为教师的夫妻二人将这套小家作为他们的婚房,在此开启人生的新篇章。本案在强调功能为设计中心的基础上,打造一个温馨且简约 ...

家如其人,我们在现代美学中寻找静谧的力量,感受家带来的柔情与舒适。本期案例的屋主是同为教师的夫妻二人将这套小家作为他们的婚房,在此开启人生的新篇章。本案在强调功能为设计中心的基础上,打造一个温馨且简约实用的居住空间,在色彩的选择上以木调的奶咖色营造宁静的居家氛围,自然舒适的气息充斥整个空间,赋予全屋舒适祥和的疗愈感。

屋主比较注重书房的使用体验于是选取了较好的一间次卧打造独立书房,尽显二人居的舒适与自在,无需太多顾虑,强调功能与实用性,为屋主量身定做更加适合的方案,以现代为设计语言,还原纯粹安静的栖居之所。

 

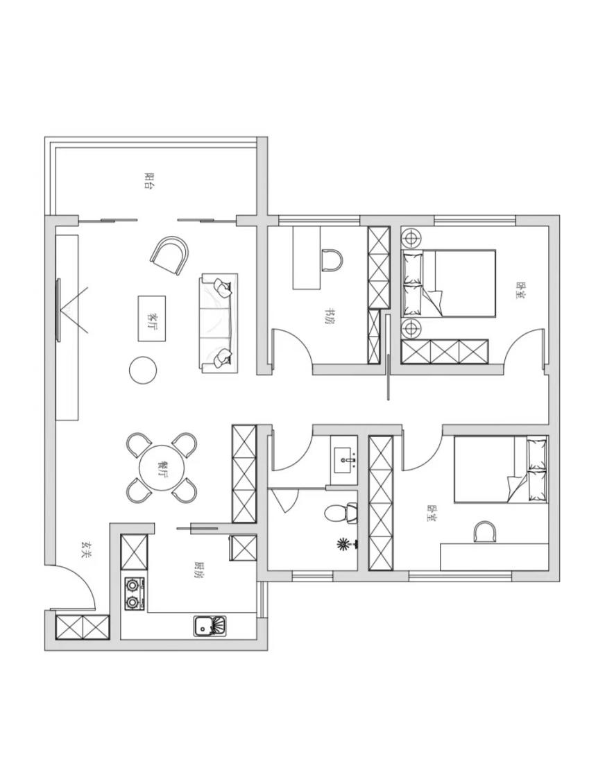
平面布置图

1.原始户型较为完善,我们并没有进行大的拆改,只是在少数地方进行优化处理,让空间利用更加高校合理。

2.大横厅打造客餐一体布局,将阳台融入室内,空间无比宽敞大气,封闭式厨房隔绝油烟,采用玻璃门连接让光线更好流通。

3.选用光线较好,空间较大的一间次卧作书房,更加契合屋主需求,提高生活质量,考究主卧放置,生活动线最优。

4.充分利用走廊室内等区域,打造储物柜扩大储物空间,将杂物隐于无形,保持室内整洁清爽。

客厅

摒弃繁杂,以开放式设计为主轴导引充沛日光入室,公区墙面通刷奶白色艺术涂料,搭配原木元素,温柔淡雅又凸显质感,奠定家的温馨舒适格调。平顶无主灯设计配合筒灯与自然光线完善室内光源。阳台纳入客厅,室内空间得以进一步拓展,搭配全景落地窗,为空间带来宽阔采光,双层帘过滤光影,给全屋镀上柔美滤镜,空间氛围静谧祥和。

#客厅#墙面#无主灯设计#落地窗#窗帘#筒灯

 

灰色沙发靠墙摆放,多人沙发+单人沙发的组合开放客厅休息区不同形式,同色系抱枕带来放松与闲适。沙发一侧放置黑白撞色落地灯,闲暇时可静静依靠沙发在灯光的照耀下阅读学习。墙面悬挂艺术挂画,黄绿配色点缀空间带来无限清新。大理石茶几居中摆放,通透冷冽是石材与生俱来的特色,金属花瓶放置郁郁葱葱的绿植渲染生机盎然,塑造禅静意境。

#客厅#沙发#抱枕#落地灯#挂画#茶几#绿植

客厅地面通铺大理石纹地砖,铺上纹理清晰质感满满的地毯塑造客厅温馨氛围,电视背景墙整体以白色搭配原木色为主,视觉效果干净清爽,不失格调与气质。原木电视柜造型简约大方,台面位置可摆放摆件与收藏品,黑色电视悬挂上方布局条理有序。白色置物架沿墙体向外延伸,为家中小物件创造归属之地。

#客厅#地砖#地毯#电视柜#置物架#摆件

餐厅

 

客餐一体的布局带来开阔连贯的视觉体验,轻盈便捷的岩板圆桌平行厨房摆放,规划处舒适的就餐区域,岩板包裹着整个空间原生态的感觉更具人间烟火,搭配上精致的配套背靠椅,营造处自然惬意的用餐氛围。上方一盏白色椭圆吊灯光影交织,美轮美奂落下清爽寂静的内心小世界,安心恬淡,淡然自若。

#餐厅#客餐一体#餐桌#餐椅#吊灯

 

餐厅不仅仅是就餐,更是每一个打工人的安心之所,墙面的每一幅装饰画都是居者留在家中的印记,伴随着浪漫光影,度过岁岁年年。餐桌后边是餐厅的收纳区,墙体内嵌留出储物空间,白色柜体拼接大理石纹墙面,与整体基调高度融合。下方封闭柜与上方开放格相互配合完成多功能储物。绿植点缀其中无论生活如何磋磨我们,仍要留出空间放置我们的诗与远方。

#餐厅#餐边柜#艺术画#绿植#开放格#封闭柜

 

厨房

厨房推拉门隐藏与柜子背部,打开时不留痕迹,柜子与门联合,将空间高校利用,橱柜统一餐椅原木+藕粉色延续全屋柔美氛围,L型布局动线舒适搭配适当高度的台面符合人体工学,让家务更轻松。利用角落空间打造大小家电放置空间,秩序井然,整洁美观。

#厨房#推拉门#橱柜#l型布局#家电

 

白色台面干净易清洁污垢无所遁形,水槽灶台各置一侧,洗切炒动线一目了然。吊柜与橱柜均采用无把手隐藏式柜门保持整洁流畅,尽显极简之没,大理石纹瓷砖填满缝隙吊柜下方隐藏灯带严丝合缝。

#厨房#台面#吊柜#瓷砖#灯带

 走廊

原木房门与木饰面构成日式气息十足的走廊,一字型布局带来由浅入深的纵深感,铺设白色大理石瓷砖,串联客厅卧室卫生间提升空间互动感。沿着走廊平铺的筒灯则为走廊蒙上微黄的灯光,步步生莲熠熠生辉。

#走廊#房门#木饰面#一字型布局#地砖#筒灯

 

走廊中部增设原木格栅门将无限光景一分为二,空间层次也在此刻得以升华丰富。通过格栅墙壁悬挂的艺术透露出朦胧又真实的美感,虚中有实。通过走廊望向客厅,考究的古董花瓶,洁白的墙面无一不是生活的烟火。

#走廊#格栅#艺术画#花瓶


主卧

 

主卧延续全屋基调,采用奶白色调乳胶漆上墙,打造沉浸式睡眠空间。双人床摆放在房间中央,在两侧均留出合理空间便于通过,藏蓝色软包床头依靠墙面高度颜色对比带来强烈视觉冲击。床头一幅艺术画彰显居者艺术修养与格调。

#主卧#墙面#双人床#床头#艺术画

 

以原木小圆桌代替繁杂沉重的床头柜,配合上方线性吊灯以轻盈小巧的姿态融入清透空间,减少不必要的空间占用整体更加简约。极简的造型和简单的配色补充储物与照明的同时,进一步丰富空间层次。床侧安装整墙衣柜,墙柜一体视觉清爽统一,睡眠氛围简约舒适。

#主卧#圆桌#吊灯#衣柜

 

次卧

次卧的风格跳脱出简约多出一丝童趣与可爱。房间整体衣柜采用浅棕色实木制作,与整体风格一致。窗前位置留出空间放置原木桌椅作为看书办公的场所,合理利用空间的同时又能扩展使用功能。书桌上方黑色置物架垂直而下摆放白色花瓶点缀绿植,颜色对比带来层次的提升的同时也与窗外景色相生相伴。衣柜与墙壁的空余刚好可以放一张双人床,去床头的设计显得简单舒适,奶油色的床上用品刚好中和了洁白墙面的单调给。墙面的小夜灯让空间在夜晚中也能温暖治愈。

#次卧#衣柜#书桌#椅子#置物架#绿植#窗户#吊灯#双人床

 

卫生间

 

卫生间整体采用干湿分离设计,将空间做好规划,日常使用更方便。搭配悬浮式一体台盆,延伸梳妆台区域简化日常梳洗步骤。巨大台面设计满足多人使用,整面镜子也让空间更加开阔空旷。

#卫生间#干湿分离设计#洗手台#洗手盆#镜子

 

洗手台下方柜子采用抽屉与竖格组合形式满足多种功能储物,灵活收纳墙面安装壁灯点亮洗漱时刻。玻璃门是无边框设计,视觉来说显得卫生间空间更大,生活中也会使得心情更加愉快。卫生间整体颜色采用灰白色,更加卫生整洁散发出浓厚清爽自然气息。

#卫生间#洗手台#多功能收纳#玻璃门#壁灯


问答

1. 前期设计与后期装修花费多长时间

前期设计花费2个月,后期装修花费5个月

 

2. 说说是什么给了你灵感,打造出现在这个作品

设计灵感来源于屋主的喜好与现代风格的结合,我们充分汲取屋主的建议与生活习惯爱好融入整体现代的设计中。比如对于书房的需求,以及卫生间布局。我们如同艺术家般对设计精细的打磨以及整体落地的把控,客户的眼光与品味,施工团队追求细致完美还原设计的工匠精神缺一不可。

 

3. 你对这套作品最满意的地方在哪

最满意的是客厅及走廊区域,将空间的空间尺度最大化展现出来,还有次卧添加书桌的处理经营部扩大了空间的深度和功能性,诠释了多功能空间。

 

4..回头看这套房子设计中你认为还有什么遗憾或缺陷吗?
没有遗憾的地方,每一个地方都经过了我们与屋主的讨论与精心修改,没有放过任何一个小细节,为客户打造出最适合他们的设计。


鲜花

最新评论

手机版|江建业 ( 京ICP备12046991号-1 )

GMT+8, 2026-4-16 18:48 , Processed in 0.040953 second(s), 15 queries .

Powered by Discuz! X3.5

© 2001-2012 Comsenz Inc.

返回顶部