江建业 首页 设计作品 查看内容

现代简约原木风,打造温馨时尚二居室

发布者: 江建业| 查看: 532| 评论: 0

摘要: 本次案例的屋主是在都市奋斗多年的一对夫妻,二人多年来为工作奔波,一直向往一个温馨的家园。所以他们在装修这个属于他们的房子时,十分注重对“温馨”概念的强调。考虑到二人都比较喜欢现代时尚的风格,我们便将原 ...

本次案例的屋主是在都市奋斗多年的一对夫妻,二人多年来为工作奔波,一直向往一个温馨的家园所以他们在装修这个属于他们的房子时,十分注重温馨”概念的强调。考虑到二人都比较喜欢现代时尚的风格,我们便将原木元素融入进现代简约风之中,打造出屋主所追求的既要“温度”又要“风度”的理想之家。原木风格的加入,是本次案例装修的点睛之笔,屋主也十分满意最后的成果。

 

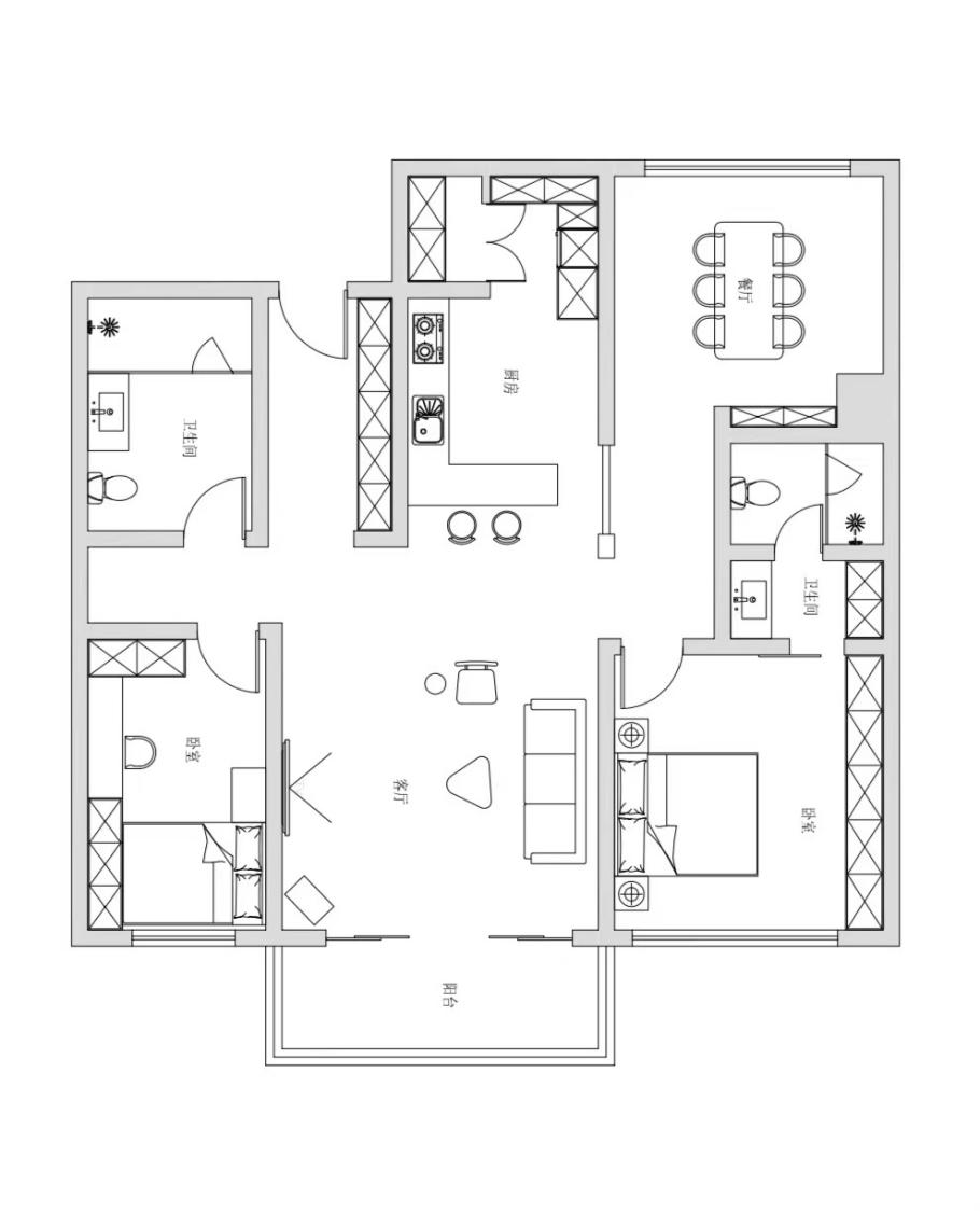
户型图

1.房屋的布局没有较大的改动,以中间的客厅为中心,向用餐区与起居室延伸,走廊与隔断的恰当安置有助于全屋动静区域的划分,让各个空间有序独立的同时,保证动线上的贯通。

2.两个卫生间采用干湿分离的设计,可以有效增加使用空间。主卧里的卫生间是三分离的独立空间,将洗手、马桶和淋浴区相隔,而在外的卫生间则是将三者依次平行排列,相互独立有序,避免了不同区域之间的互相干扰。

3.厨房采用半开放式的设计,在与客厅相邻的区域设计了一个吧台,可供屋主享受一个方便省事又不失精致的早餐;与餐厅之间则是设计了一个半开放的隔断,打造出相联系又分离的独立空间,保留屋内隐私界限。

#户型图#结构图#平面布置图

 

玄关

进门,首先来到玄关的位置,是一个长方形的半开放空间。墙面选择了纯白色的粉刷,地面选择了浅灰色的设计,整个色彩的搭配简约大方。在布局上进行大量的留白,少有装饰物,更显干净。

玄关地面设计墙面设计

 

在橱柜的设计上选择了原木的材质,红橡木的花纹与色调展现一种温馨又细腻的美感。橱柜的上进行了一定的流白,避免空间过于的沉闷。同时,橱柜的下方选择悬空的设计,留有充足的空间可以供屋主放置常用的鞋具,更加方便拿取。

玄关橱柜地面设计

 

客厅

从玄关走出来,首先映入眼帘的便是客厅的区域了。整个客厅区域的面积很大,视野十分开阔。正对着玄关的一侧,便是整面的落地窗,采光十分的充足。而整个空间的布局也是分简单大方的,在墙壁的设计上选择了纯色的式样。沙发靠着墙面放置在为中心的地方,一个长方形的液晶电视悬挂在其对面的墙壁上,营造干净简约的装饰格调

客厅沙发落地窗电视地板

白灰色的长方形沙发容量大,可供2~3人随意落座。地面上铺着一个简约风格的灰色系地毯,增加地面装饰的层次感。其上放置着一个玻璃台面的茶几,底下搭配原木色调的支撑架,给予更大的艺术观感价值。沙发的一侧还放置了一个单人椅,避免空间过于单调

客厅沙发地毯茶几单人椅

 

客厅采用无吊顶的设计,使空间层高看起来更加的开阔,减少楼间距的沉闷压抑感。同时,搭配无主灯的设计,一条长形的照明灯与LED灯平行而,共同保证整个客厅空间的照明问题,在提供照明功能的同时,也给予视野上简洁清爽的观感。

客厅无吊顶无主灯

厨房

顺着客厅往前看,隔着走道便来到了厨房的区域整个厨房采用开放式的设计,选择经典的L型橱柜能更好安排厨房各个功能区的布局选择将面朝客厅的一侧作为一个简单的用餐小吧台区域,能让屋主在工作繁忙的早晨享受方便又不失精致的早餐。

厨房橱柜走道客厅

 

厨房的用色上以纯白色为主,无论是橱柜还是吧台的台面,都是相同的选色,整个空间的色调十分的协调统一,视觉上更加的干净利落。往里侧走,靠墙的一侧定制了一面墙的橱柜可以供屋主收纳物品。并将冰箱镶嵌其间不会占据过多的空间,却让整个布局恰到好处

厨房橱柜色调

选择无吊顶无主灯的设计与客厅的空间感相呼应,更显空间的整体性。纯白的天花板上安置着不同样式的灯具,有间的LED也有条形照明灯光也有长方形样式的照明灯,满足屋主不同的照明需求。不同的灯可以分开控制亮度,节能又环保,很是人性化。

厨房无吊顶无主灯

 

在吧台的一侧墙壁上设计了多个插头更方便日常生活的使用。台面采用延展的样式,在原来橱柜的基础上扩大桌面的空间,给使用者留有放置腿部的舒适区。在桌面下方搭配了两个原木坐凳与金属支架相混搭的高脚凳,温馨中不乏独到的时尚品味。

厨房墙壁设计吧台高脚凳

 

在靠近走廊一侧的墙壁设计上,选择在原有墙壁的基础上设计大理石纹路的支柱以及纵向的装饰梁,使整个空间充满艺术氛围的同时,也减少大面墙壁带来的封闭压抑感增加不同空间之间的流通联络性。

厨房墙壁设计吧台高脚凳

 

餐厅

顺着大理石墙壁装饰的过道往里走,便来到了餐厅的区域。餐厅朝阳,落地窗的设计,让整个空间享有极好的采光,适合白日休闲,也适合傍晚团聚。较为封闭式的方形空间给予用餐者更多的凝聚与安全感,定制的一套白橡木餐桌也与全屋的原木风相协调,纯白的墙面延续简约温馨的风格。

餐厅窗户餐桌地板

餐桌上方悬挂着一个白色纸灯笼样式的吊灯,与整体呈现的和谐温馨的氛围十分协调。桌面上摆放了一个简单的杏白色花瓶,增加装饰艺术感。纯色墙面的一侧悬挂着一张屋主喜欢的艺术画,点缀着空间。角落搭配了一株绿植,为餐厅增加更多的鲜活、生机能量。

餐厅餐桌吊灯墙面设计

 

餐厅采用无吊顶的设计纯白的天花板上内嵌了中央空调。同时,在其间穿插了零星的LED灯,满足局部照明的需求在右侧的墙角处设计了顶天立地式的橱柜,可以增加收纳储物的功能并镶嵌了一个多功能数字酒柜,可以调节温度,储放屋主喜爱的酒类

餐厅无吊顶LED酒柜

 主卧

从厨房的吧台向前望,在客厅的背面便是主卧的区域打开木质的房门,我们可以看到整个主卧的空间是十分开阔的,在布局上也清晰明了一张双人床靠墙放置在中间,一侧安置了悬空式的床头柜,两个长方形样式的床头灯悬挂在床头墙面上,简单中显现精致感。临窗的朝向享受极佳的采光。

主卧双人床墙面设计床头柜窗户

主卧在房顶设计上依旧是无吊顶的设计,使整个空间的纵向视野更加的开阔。并且也采用无主灯的设计,不同款式的灯光,例如LED灯、长方形照明灯等搭配起来,可以分别调整不同的亮度的同时,共同完成整个空间的照明。在房门设计上选择两扇木质的房门,与整体的原木色,风格相一致,可以做到与房间外以及卫生间区域进行自然的区域分隔与过渡。

主卧无吊顶无主灯灯具房门

 

卫生间1

从这个木质的移动门往里走,便来到了主卧的卫生间区域。整个卫生间做了完整的干湿分离。靠近门的地方洗手台的区域,依旧选择了木地板的铺置与洗手台下的原木开放式隔层相协调,搭配墙壁上悬挂的暖色灯光更显温馨在台面上选择了大理石花纹质地的嵌入式台盆,台面上留有更多放置物品的空间

洗手间地板洗手台

淋浴间在墙面的设计中选择时下流行的大理石灰,与天花板和地面瓷砖整体相协调,更显高级质感。在顶部安置了一个顶喷花洒,满足屋主对于淋浴时雨淋、水雾等不同出水方式的多种需求。在墙角的一侧悬挂了一个两层的黑色置物架,与简约高级质感风格十分的协调。

卫生间淋浴间顶喷花洒置物架

 

次卧

次卧选择白色系为主的色调,采用一体化定制的床具、橱柜,更具整体协调感。床放置在靠窗的一侧,享有极佳的采光。定制的床铺、床垫下设计的是可收纳用品的抽屉,符合生活的需要,很是实用。床尾部分设计了长方形的竖形橱柜,可以起到衣橱柜的功能。往右侧延伸则是一个写字台,展现了整个组合功能的多元性。

次卧橱柜

墙面设计上,临近床头的部分选择局部灰色格纹软垫的设计,在一定程度上保护头部,给与使用者更舒适的使用感。在床垫的上方则进行了局部的纯色墙面叠加,营造空间的立体层次感。并在上方设计了一个白色系的简约床头照明灯,减少纯色调的单一感。在床边的一侧搭配了一个长方体式样的床头柜,单层抽屉的设计不会过多占据空间,减少繁琐感,搭配一个简单的白色小花瓶,简约中不失精致。

次卧床头设计床头柜

 

书桌的一侧上方是一个一体式的、封闭式的橱柜收纳,悬空的设计,为下方的空间留有余地。桌面中间的主要区域选择了单层的设计,可以给屋主提供舒适的享用空间,并搭配了一个休闲靠背办公椅。右下角选择了一个落地式的橱柜,增加收纳功能。在最右侧设计了一个顶天立地式的橱柜,这个房间增加更多的收纳储物空间。

次卧书桌橱柜收纳

 

卫生间2

进屋向右走,是一个独立的卫生间,主要是起到待客和日常的使用需要。外侧的纯色墙面上增加一些白色系、带有珠光材质的装饰,艺术品在LED灯光下更显精致。里侧的布局也是以灰白色系为主,观感上十分的简约。整个卫生间呈现一个长方形的空间,马桶、洗手台以及淋浴间由外向里依次平行排列,相独立存在,不影响单独的使用。

洗手间墙面设计马桶地砖

 

马桶选择纯白的样式,在灰色的墙面瓷砖设计下更为的突出。而洗手台也选择了与马桶同色系,并在样式上选择了最为简约的台盆款。去掉繁琐的橱柜设计,不占过多的空间视角,显得更为的轻便。在镜子的样式选择上选择了镜柜的款式,增加收纳功能,不占据过多的空间,更符合屋主对简洁的追求。里侧的淋浴间是透明玻璃门,会减少空间的封闭感,安置的淋浴头是深色系的搭配,耐脏、易于清洁。

洗手间马桶洗手台淋浴间

 

问答

装修过程花了多长时间?

前期的设计周期是34天,后期的施工历时100天。

 

这套房屋的设计理念是什么?

考虑到90后上班族在工作上的繁重压力与自身的年轻活力因素并存的情况,我们希望能给这些为生活辛苦的工作的青年人带来更多的家中的舒适。在设计的过程中,主张宽阔的空间,给屋主回家后的喘息放松提供外在环境。舒适的沙发,实用的宽阔台面,便于青年人到家后随性摆放自己的物品,工作物品、外卖甚至是快递等等。一些恰到好处的装饰,也让屋主回家后能感受到生活中的人情味,繁忙的都市生活也可以变得很浪漫。

 

你对这套作品最满意的地方在哪里,为什么?

最满意的使厨房的设计,因为它既满足了屋主对空间简约大方的观感要求,而且做到了不同功能区之间的自然过渡,是设计中的点睛之笔。

 

回头再看这套房子,设计当中有什么遗憾的地方吗

没有什么遗憾,我尽了最大努力,屋主也十分满意最后所呈现的装修成果。感谢每一次的设计经历能让我积累到更多的经验,期望自己日后在设计上有更多的创新!

 


鲜花

最新评论

手机版|江建业 ( 京ICP备12046991号-1 )

GMT+8, 2026-2-20 18:29 , Processed in 0.039083 second(s), 16 queries .

Powered by Discuz! X3.5

© 2001-2012 Comsenz Inc.

返回顶部