江建业 首页 设计作品 查看内容

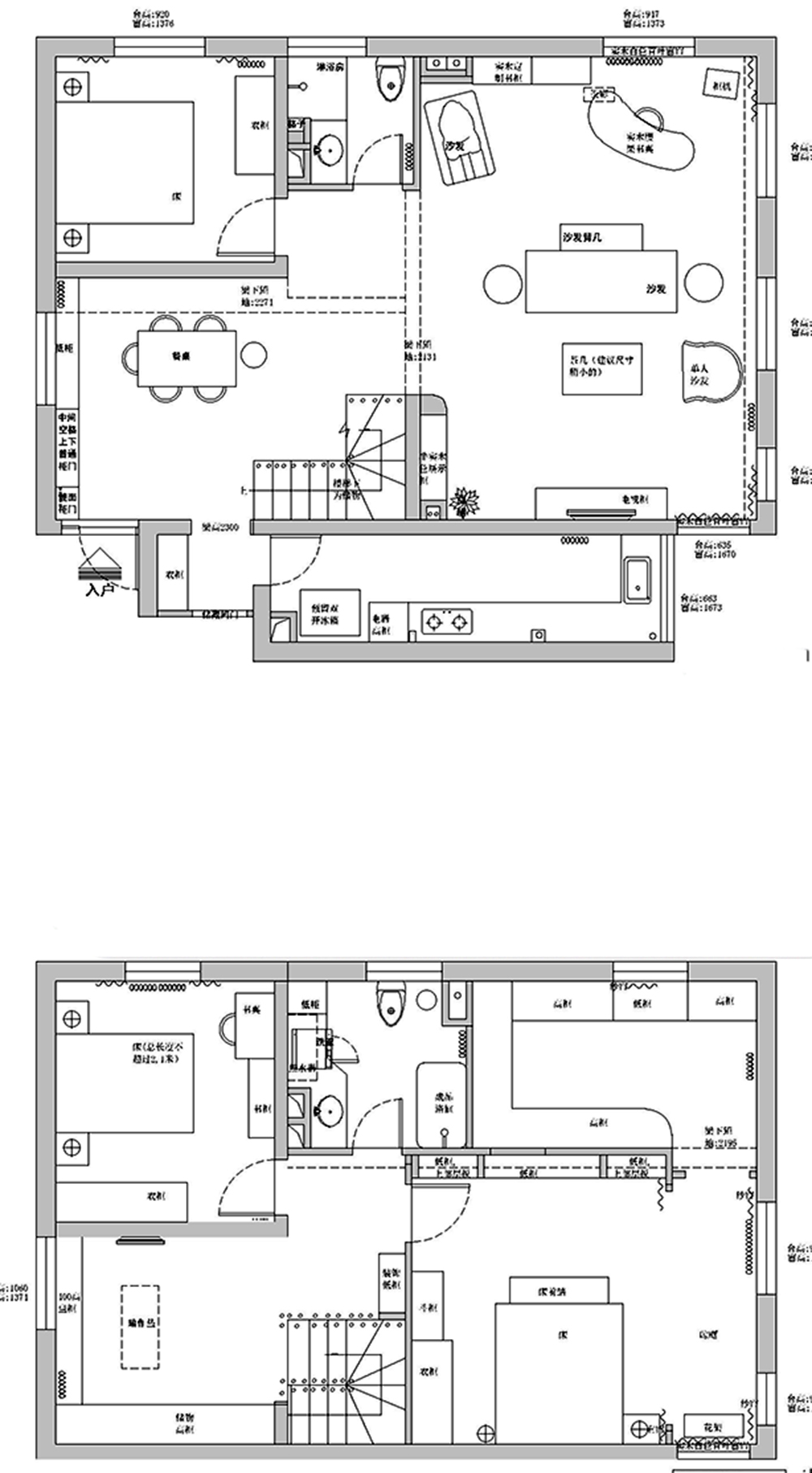
江建业设计作品《草桥欣园雅居》

发布者: 江建业| 查看: 433| 评论: 0

摘要: 《草桥欣园雅居》坐落地点:中国--北京市-草桥欣园项目面积: 260平米左右设计师:江建业施工方:设计师推荐之前业主用过的靠谱工长(非工长俱乐部,或装修公司合作工长)设计师的设计理念:新自然主义设计师江建业,最 ...

《草桥欣园雅居》

坐落地点中国--北京市-草桥欣园

项目面积: 260平米左右

设计师江建业   

施工方:设计师推荐之前业主用过的靠谱工长(非工长俱乐部,或装修公司合作工长)

设计师的设计理念:新自然主义设计师江建业,最擅长运用新自然主义设计出最亲切、最自然的空间,其作品很容易让感受者无设计为有设计的自然的心理回应,给人以道法自然的启示,让生活回归到田园的自然环境,空间变得更加生态环保。

在他看来,对于一个家来说,性价比高、安全、实用、耐用,耐看、环保这些因素比风格和创意更重要!


鲜花
发表评论

最新评论

手机版|江建业 ( 京ICP备12046991号-1 )

GMT+8, 2026-4-14 12:51 , Processed in 0.019974 second(s), 16 queries .

Powered by Discuz! X3.5

© 2001-2012 Comsenz Inc.

返回顶部