江建业 首页 设计作品 查看内容

2012年4月设计【舒服就是最好的风格】将美丽慢慢融进生活

发布者: 江建业| 查看: 3318| 评论: 0

摘要: 坐落地点: 中国-北京市-朝阳区-百子湾-沿海赛洛城2期项目面积: 75平米设计师: 江建业设计时间: 2012年4月项目性质: 住宅高端室内设计师江建业High-end interior designer JiangJianYe Hotline:134 365 90876QQ:964 8 ...

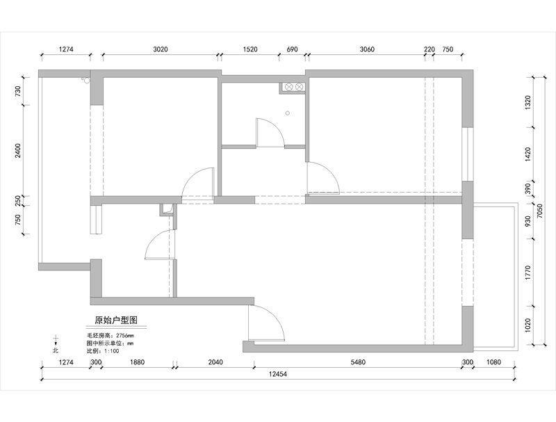
坐落地点: 中国-北京市-朝阳区-百子湾-沿海赛洛城2期

项目面积: 75平米

设计师: 江建业

设计时间: 2012年4月

项目性质: 住宅

高端室内设计师江建业
High-end interior designer JiangJianYe

Hotline:134 365 90876

QQ:964 877 830

网站:www.jiangjianye.com

原创案例,版权归江建业所有,转载需注明出处,谢谢合作


鲜花
发表评论

最新评论

手机版|江建业 ( 京ICP备12046991号-1 )

GMT+8, 2026-4-16 21:12 , Processed in 0.029265 second(s), 14 queries .

Powered by Discuz! X3.5

© 2001-2012 Comsenz Inc.

返回顶部