江建业 首页 设计作品 查看内容

2013年3月【休闲欧式混搭风】

发布者: 江建业| 查看: 3641| 评论: 0

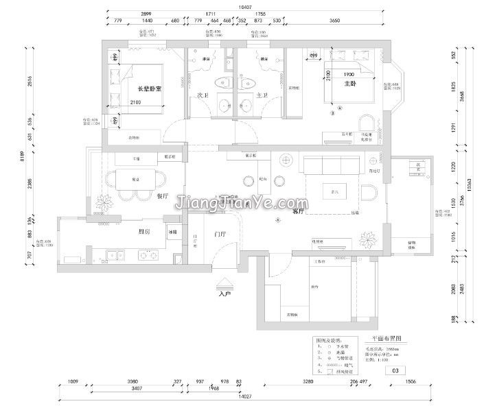
摘要: 坐落地点: 中国-北京市-丰台区-清秀城项目面积: 130平米设计师: 江建业设计时间: 2013年3月项目性质: 住宅高端室内设计师江建业High-end interior designer JiangJianYe Hotline:134 365 90876QQ:964 877 830网站:w ...

坐落地点: 中国-北京市-丰台区-清秀城

项目面积: 130平米

设计师: 江建业

设计时间: 2013年3月

项目性质: 住宅

 

高端室内设计师江建业
High-end interior designer JiangJianYe

Hotline:134 365 90876

QQ:964 877 830

网站:www.jiangjianye.com

原创案例,版权归江建业所有,转载需注明出处,谢谢合作

1

鲜花

刚表态过的朋友 (1 人)

发表评论

最新评论

手机版|江建业 ( 京ICP备12046991号-1 )

GMT+8, 2026-4-16 21:07 , Processed in 0.034032 second(s), 14 queries .

Powered by Discuz! X3.5

© 2001-2012 Comsenz Inc.

返回顶部