搜狐微博:http://chinadesign.t.sohu.com/
新浪微博:http://weibo.com/u/3153364515
腾讯微博:http://t.qq.com/jiangjianye----sheji
十年盛典装修日记新锐PK赛金奖得主
江建业独立设计作品
所在小区:铭科苑
建筑面积:71㎡
户型:两室一厅
装修风格:各种混搭
装修费用:15万
71平二手房装修,老旧产品彻底拆毁,全部重来,请了独立室内设计师,在偶的积极配合下,在老公出差落跑的情况下,在老爸老妈从外地赶来助我硬装施工一个月的亲情赞助下,在装大结交的诸多好友的热情帮助下,偶的小家终于顺利装修完毕。虽然离入住还有些日子,不过现在已经让我布置的很像一个家了,基本上可以当N星级宾馆偶尔住上一住了吧^-^
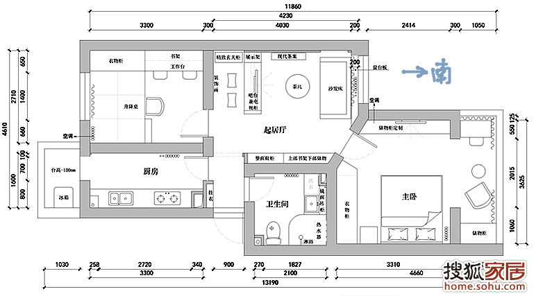
首先来看看户型图吧,二室一厅一厨一卫俩阳台。这是最初的设计,后期有些小改动。

一、门厅篇

一进大门,映入眼帘的就是偶们家最炫的吧台啦。左边小鞋柜,右边俩镜子,镜子后边是神马呢?好多TX都知道的。。。脚下踏着n朵绿花,头上顶一大红花。话说这画是我亲手在石膏板上画的,油工师傅给裁下来扣到吊顶上的,紫荆花^-^

回头看看防盗门,卫生间门(挨着防盗门的镜子)和月牙挂在树梢的厨房门。

推开隐形门,就是偶家老公最爱的卫生间了,当初就是他严重看上了这个大卫生间,才坚决的买下了这房子。这款隐形门是设计师专门针对我们家进门的小走廊设计的,能起到增大空间的视觉效果。
二、客厅篇

此款吧台下边是红砖砌的,实木台面,其他都是爱格花梨木板。左边柱子里包的是根粗暖气管,我不说的话您以为就是这么设计的吧?呵呵

这面墙用来挂电视,这也是设计师的独家设计,吧台兼电视柜,灰常适合我们的小客厅。

这些密封罐罐是装大给我的第一次重大鼓励:每周之星。跟吧台很搭,跟客厅窗帘的颜色也很搭,有木有,估计以后也不会舍得用吧。。。

家里最后淘来的家具就是这个小套几和沙发旁的小凳了(它实际上是配梳妆台的梳妆凳),这三件绝对都是多功能。

为什么没买正经茶几呢,因为偶们家没有专门的用餐区,木有饭桌,平时倒是可以在吧台吃饭,不过偶俩喜欢边看电视边吃饭,在茶几上吃饭呢得猫腰,窝得慌,这俩小套几就解决问题啦。开饭时端一大餐盘放上边,就可以美滋滋的边吃饭边看电视啦,哈哈,平时放个笔记本,看个ipad,也木有问题。

平时也可以当茶几摆,这么摆,那么摆,都行哈,像不像两只恩爱的小天鹅啊~~

来俯瞰一下偶们家客厅吧,黑色背景的纯粹是为了搞艺术,炫感觉,嘿嘿~~

客厅的这面整墙的柜子也是设计师独家设计的,基本按照效果图做出来的。黑色背景很有纵深感吧。不过以后可能还是要放很多书的。右边两开门的柜子上部分挂衣服,下边放鞋,其它柜子储物。

来张有角度的看一看,柜子和镜子中间的那堵墙是空的,石膏板砌的。。。
三、主卧篇

偶们终于能睡上1米8宽的床了,还能坐在床头看书,真舒服。。。

订制的推拉门衣柜超级能储物,很实用,比买跟床配套的实木衣柜便宜一半,衣柜右边的小隔断是老公提议这么做的,灰常好,以后可以摆摆相框什么的。。。

南边有个大阳台,之前的房主就是这样打通了的,我在那个垛上铺了个理石台面,下边留了插座,在那用个笔记本没什么问题,晚上可以坐那儿上上网就睡了。。

床对面的小桌上也可以放电视,留了电视线和网线,右边是个类似书柜的柜子吧,设计师给选成了黑色,看着很特别。

阳台放了一大储物柜,用来放杂物吧,其它空间用来晾衣服也够用了。
四、次卧篇

这个卧室在北边,不大,所以只摆了张单人床,暂时当书房吧,看书累了就倒床上睡一觉。以后有宝宝了给宝宝用应该也可以。设计师把它当宝宝房了,给画了漂亮的房子~

大衣柜应该先被我霸占吧,以后再给宝宝用^-^

配上蓝色的窗帘,有木有点小清新~~

这大写字台偶和老公都灰常喜欢,现在还没研究好将来归谁用,这写字桌是这套家具里唯一订制改了样式的,最后的效果还不错。

迪拜床配上墙画,有点童话浪漫的气息。。。床下边是个大抽屉,也相当能储物了。
五、厨房篇

三延米的斑马木纹橱柜,配上黑色的电器,白色的石英石台面,灰色的地砖和墙砖,看着很温馨很别致吧。

铝扣板吊顶里配的是LED灯。北边的小阳台打算放冰箱,现在还木有买呢。

柜底灯也是LED的,手触开关,照得台面亮堂堂的。插座好像留多了,呵呵,3个应该就够了。

大单盆很实用,还做成了台下盆,好打理。水槽下配了前置过滤器和直饮水机。
六、卫生间

卫生间差不多是2m*2m见方,白色的马桶、浴室柜和散热器,古铜色的花洒、镜前灯和五金件。

学宾馆配了放浴巾的架子,还有挂浴袍的衣钩,上边俩圆口分别是暖风和排风,马桶是老房子固定配置的侧排马桶,右边留的墩布龙头很实用。

镜子柜里有很棒的储物空间,龙头是抽拉龙头,水盆超大的,将来洗个宝宝应该没什么问题。

为了此款隐形门,我专门在淘宝上淘了这款古铜色的单面门锁,跟五金件还挺配的。
上面这些照片基本展示了偶家的全貌,整个装修过程在日记里也差不多记全了,总的来说还是轻松加愉快的,主要原因是偶最初就没有要求尽善尽美,没有考察的特别细致,基本就是跟着设计师走,跟着感觉走,最后的效果比较满意吧,不完善不实用可以更好的地方当然有,多花的银子也不少,但经验是需要这些不完美才能换来的,当然也是能够通过学习前辈们的日记而提前获取的,在这里,我收获很多,因此也愿意跟大家分享我的小家装修之初体验,希望能够对大家有点小帮助,小启发^-^
谢谢每一位帮助过我的朋友!