江建业 首页 设计作品 查看内容

慧谷阳光三居改两居的畅快

发布者: 江建业| 查看: 6| 评论: 0

摘要: 家——是我们的避风港,是身心休憩、放松的舒适居所。宽敞、包容的家,不仅让我们的安全感和归属感爆棚,幸福感更会不断upupup!本次托设计为二人世界,业主对卧室独立空间的个数要求不高,将厨房和旁边原客 ...
家——
是我们的避风港,
是身心休憩、放松的舒适居所。
宽敞、包容的家,
不仅让我们的安全感和归属感爆棚,
幸福感更会不断upupup!
本次托设计为二人世界,业主对卧室独立空间的个数要求不高,将厨房和旁边原客卧的空间打开,作为餐厨开放空间。这样在生活中有更多的交互。这通常也是秒变豪宅的做法。客卫做了干湿分离,方便客人和白天内外功能的使用互补打扰。客厅原空间结构相对开敞,设计上保留和增大了开敞性设计。匹配平时在家的生活状态,厅里没有要电视,而是在侧墙安排了投影。在游戏之余,一个人可躺着观影,另一边有个舒适的单人沙发可享受观看。完全的量身定制。业主唯一的诉求就是有足够合适的乐高展示区,所以我们沙发没有靠墙,而是将客厅的两面主体墙做了展示柜,来陈列大型乐高。无主灯设计在现场实施过程中考虑尽量保留原层高,灯具基本选择了明装。效果还不错。墙面一体化设计,由木门商家调色配合完成。增加空间延伸感。固定大餐台的设计也是增加设计感整体感。岩板上墙的一体化设计也是现代感拉满。原主卧空间不规则,通过空间调整,实现了规整的主卧,已经隐形的衣帽间。材质上大板瓷砖、乳胶漆、三层实木复合大地板、
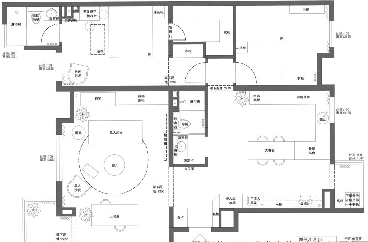
原始户型图

平面布局图

玄关改造前

玄关效果图

玄关实景

1/2
精致的玄关总给人美好的初印象,就像这幅艺术性十足的装饰画不仅能提升全屋格调,还能感受到业主的品味与追求。设计上让玄关融入客餐厨的大景中来。
客厅改造前

客厅效果图

1/2
客厅实景

焕然一新的客厅高级感拉满,墙面采用一体化设计,木门踢脚由木门商家调色配合完成,大大增加了空间延伸感。没有传统电视墙,而是更多的利用墙面做收纳和展示。以保证入住后的效果。
实景1

客厅更多的是家人互动,沟通,享受居家氛围的区域。安全、实用、耐用、耐看。是我一直所提倡的。杜绝经不起考验的所谓风格或材质工艺。设计考量中3、5、8年每个居住使用年限的计划,都伴随着不同工艺和材质的选择。而不是千篇一律的选择当下!
实景2

前期与业主沟通时,希望客厅有足够合适的乐高展示区,为此,客厅的两面主体墙做了展示柜用来陈列大型乐高,在保证足够收纳空间的同时又不失美观。
 厅改造前

厅效果图

厅实景

客厅保留了原开阔的大空间感,无主灯的安排让氛围更突出。考虑保留原层高,没有满吊顶来处理。从而硬装造价也是稍微省了点。开放区域全大砖铺贴。相对更好打理。投影安排在侧墙,躺着也可以看大片游戏。

满满的乐高展示柜,可见业主的功力。我这的作品一般都是还原业主真实居住状态,入住半年一年才拍摄。而不是业主入住前,现场空空荡荡干干净净去拍个所谓极简的空壳。(入住必现原型)家装就是实用主义艺术的平衡。家是生活之处。家装作品更多是要体现生活。
厨房改造前

厨房效果图
1/3
把厨房和旁边原客卧的空间打开,合二为一,作为餐厨开放空间,交互性更强,开放式布局带来超大的视觉体验;原木色橱柜搭配的温润质感与色调给人一种自然、放松之感。
客卫改造前

客卫实景

客卫做了干湿分离,方便客人和白天内外功能的使用互不打扰。带背光的圆形镜子,让不大的空间显得更加开阔、明亮。
客卧实景

客卧以舒缓的浅灰色为主,散发出一种纯净、温馨的气息,床头墙面的挂画起到了很好的画龙点睛的作用。
主卫效果图

主卫实景
1/2
改造后的主卫充分发挥收纳功能的同时,也非常美观,可谓是实用性、美观性兼备。难得的大窗户采光,配合内置百叶让如厕更享受。
主卧改造前

改造前:原主卧空间不规则,看起来比较杂乱、舒适性欠缺。
主卧效果图

主卧实景

好的卧室不仅要考虑物品陈设,整体色调的和谐搭配也很重要。通过空间调整,隐藏异形,实现了卧室的规整;同时整个卧室看起来不过于单调,又不张扬,给人端庄、整洁的视觉享受。在色彩搭配上追求舒适、优雅,在功能区上追求灵动、多用途,在布局陈设上追求实用、宽敞,全屋通透、舒适感拉满。衣帽间的隐形设计也比较精彩。一房,一家人,三餐四季,最幸福、舒心的日子莫过于此!


鲜花
发表评论

最新评论

手机版|江建业 ( 京ICP备12046991号-1 )

GMT+8, 2023-5-20 08:44 , Processed in 0.039767 second(s), 18 queries .

Powered by Discuz! X3.5

© 2001-2012 Comsenz Inc.

返回顶部